EasyManua.ls Logo

ITV Greenline HE E6-E11 - Page 37

Default Icon
80 pages
Print Icon
To Next Page IconTo Next Page
To Next Page IconTo Next Page
To Previous Page IconTo Previous Page
To Previous Page IconTo Previous Page
Loading...
Electrical connections
6 720 802 419 (2012/06) en
37
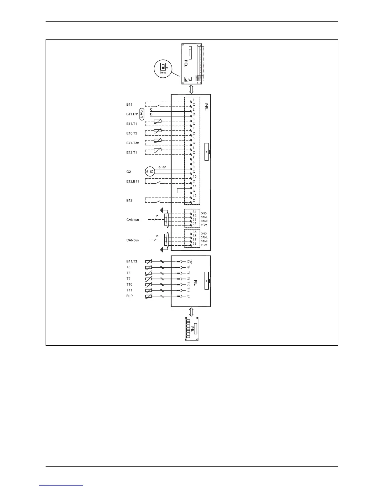
10.3.7 Complete wiring diagram connections
Fig. 34 Complete wiring diagram connections (low current)
Solid line = factory set connection
Dotted line = connect during installation:
[B11] External input 1
[E41.F31] Alarm protective anode
[E11.T1] Flow
[E10.T2] Outdoor sensor
[E41.T3x] Hot water E model
[E12.T1] Flow circuit 2
[G2] Heat carrier pump
[E12.B11] External input, circuit 2
[B12] External input 2
[E41.T3] Hot water C-model
[T6] Hot gas sensor
[T8] Heat transfer fluid out
[T9] Heat transfer fluid in
[T10] Collector circuit in
[T11] Collector circuit out
[RLP] Low pressure switch
6 720 802 416-13.1I

Table of Contents