EasyManua.ls Logo

Iveco N67 MNA M15

Iveco N67 MNA M15
74 pages
To Next Page IconTo Next Page
To Next Page IconTo Next Page
To Previous Page IconTo Previous Page
To Previous Page IconTo Previous Page
Loading...
35
INSTALLATION DIRECTIVE
N45 MNA M10
N67 MNA M15
MAY 2006
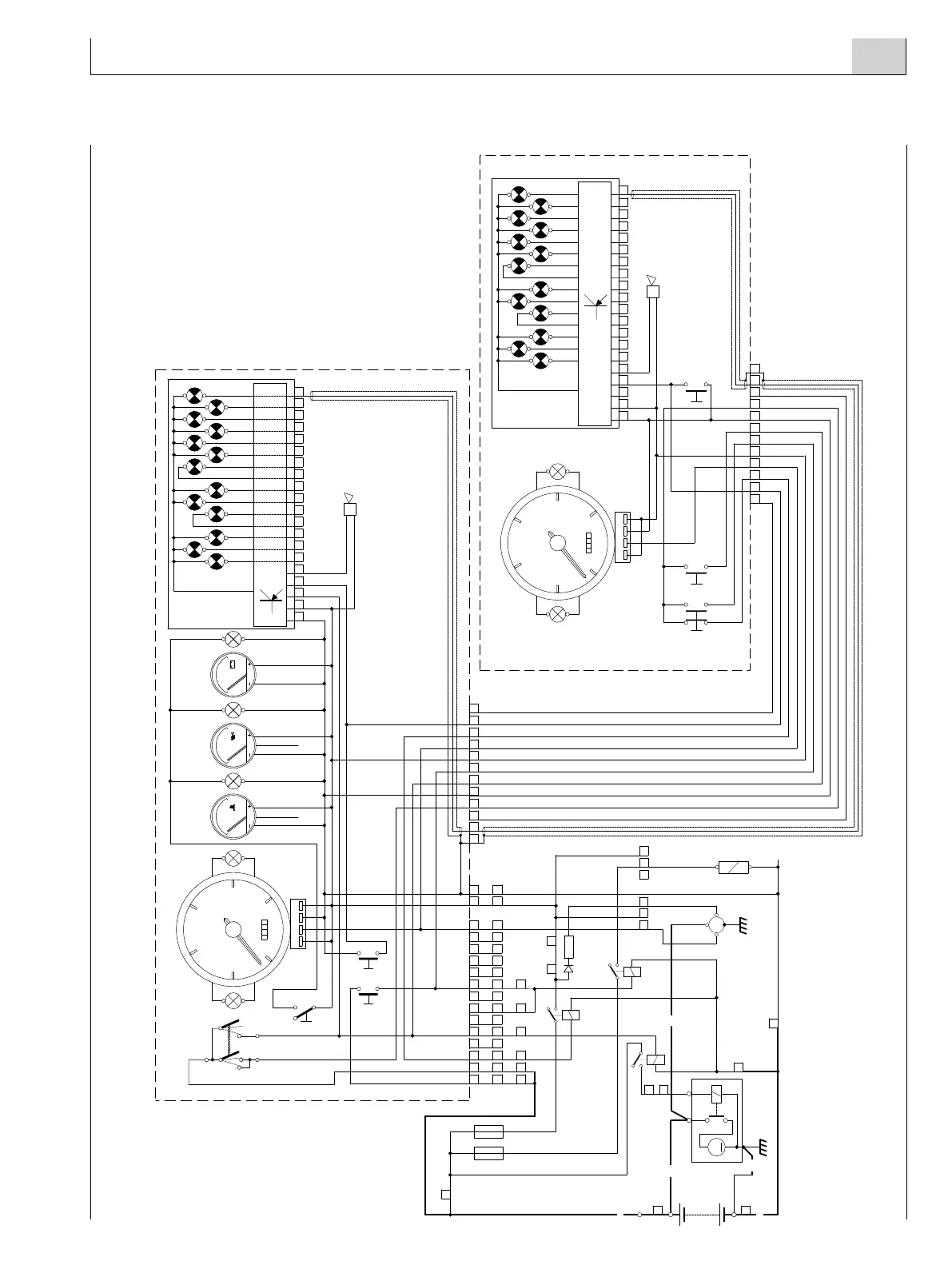
M10.00/M15.00 Secondary analog instrument panel
* See main instrument panel wiring diagram
"!44
!#
"!44
*!
*#
!1
0
,
#!
#'
3)&#
*$
3)&!
3!#
33
%$#
3"0/
3!4!
3)&/
3)&"
3",!
3#0
4! -/ 6
-3
*$
336
30
10


 


 

 










 




*"

3!
*#
*"
#'
#3
-3
*$
!3
0
3!
*%
*(
13











 
 




8


''

-


*
"
$


2
2
2
23
*&
*!
*&
*!
''
*&
*!
¬!


*&
&3&3
¬!
7

*
%#



8


# #

Related product manuals