EasyManua.ls Logo

Iveco N67 MNA M15

Iveco N67 MNA M15
74 pages
To Next Page IconTo Next Page
To Next Page IconTo Next Page
To Previous Page IconTo Previous Page
To Previous Page IconTo Previous Page
Loading...
62
INSTALLATION DIRECTIVE
N45 MNA M10
N67 MNA M15
MAY 2006
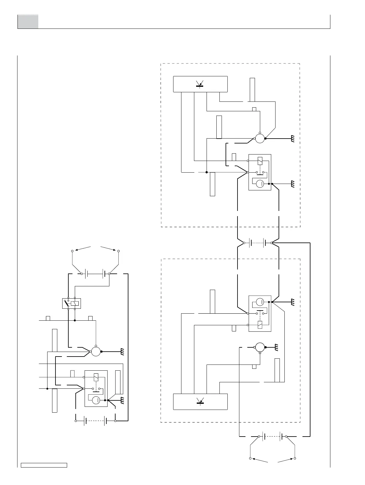
M10.01/M15.01 Supplementary services battery recharge
Key:
- AC1: Main Battery
- AC2: Battery for auxiliary services
- IE1: Engine 1 electrical system
- IE2: Engine 2 electrical system
- RL: Relay 50A max.
- *: Electrical power supply for services
Single engine
installation
Two-engines
installation

"!44¬--
"!44¬''


n"!44¬--
n"!44¬--
n"!44¬--
"!44¬-- "!44¬--
"!44¬''
-
-


!#
--
''
"
!#
n

''
"
"
"
$
--
¬
*
¬
*
)%
)%
n
-

!#
--
''
"
"

''
¬
n
!#

2,
n

*
¬
$

$
 
 

Sk Accum_Servizi NEF280 S3

Related product manuals