EasyManua.ls Logo

JLG 600A - Electrical Schematic - ADE - Sheet 4 of 6

JLG 600A
342 pages
Print Icon
To Next Page IconTo Next Page
To Next Page IconTo Next Page
To Previous Page IconTo Previous Page
To Previous Page IconTo Previous Page
Loading...
SECTION 7 - BASIC ELECTRICAL INFORMATION & SCHEMATICS
3121201 – JLG Lift – 7-17
B+
FUSIBLE
LINK
RECTIFER
REGULATOR
ALTERNATOR
STATOR
SENSING AND
SWITCHING
CIRCUITS
WHT/YEL 48-12(12)
J1-12
GLOW PLUGS
D+
START
SOL.
J1-8
J1-11
B+
RED 1-1(10)
STARTER
MOTOR
SOL.
STARTER
MOTOR
BRN/WHT 47-8
BLACK (16)
WHT/YEL 48-3
12 VDC
BATTERY
BATTERY CABLE (1 GA.)
WHT/YEL 48-9
DEUTZ ENGINE
11
ORN/RED 49-198
1
2
10
11
12
13
14
MTB TO EMR2 ENGINE CONTROL
ORN/RED 49-199
BLACK 0-1
A
K
LB
DEUTZ
DIANOSTICS
PLUG
ENGINE OIL
PRESSURE
COOLANT
TEMPERATURE
EMR
ACTUATOR
ENGINE
SPEED
CAMSHAFT
CHARGE AIR
PRESSURE
8
9
13
12
23
4
25
24
22
21
20
14
15
17
19
GRD (SPEED)
SPEED
GRD(TempAll)
GRD (ACD2)
ADC5(TEMP1)
+5Vref(ADC2)
ADC2
+5Vref(ADC4)
ADC4
GND (ADC4)
ActorOut
ActorOut
RackMeasCom
RackMeasRef
18
RackMeasSignal
ADC7(TEMP3)
EMR2 ENGINE CONTROL TO ENGINE
YEL/RED 2-1-98
YEL/RED 2-1-99 (16)
IGN POWER
CONNECTOR
SEE SHEET 1
CAN HI
RED (18)
CAN LO
BLACK (18)
CAN SHIELD
A
B
C
SEE SHEET 1
BLU/ORN 52-5
86
85
87
30
87a
BLU/ORN 52-5
7
7500 W
GENERATOR
86
85
87
30
87a
J1-22
RED
5 AMP
RED
BRN/WHT 47-20
BLU/ORN 52-6
YEL/RED 2-20
BLACK
C
A
B
GENERATOR
CONTROL
BOX
2
1
2
1
1
2
3
4
1
2
3
1
2
3
4
5
120 OHM
RESISTOR
WHT/YEL 48-13 (8)
COOLANT TEMP.
SENSOR
OIL PRESSURE
SENSOR
FUSIBLE
LINK
ALTERNATOR
STATOR
J1-14
J1-15
RED 1-1(10)
BRN/WHT 47-8-1
BRN/WHT 47-5
BRN/WHT 47-6
ORN/RED 49-53
FUEL ON
SOLENOID
P
MIC
IG
L
BRN/WHT 47-21
1
2
3
ALTERNATOR WITH PLUG CONNECTOR
B+
CAT ENGINE
600A, 600S, 800A
BRN/WHT 47-8
GLOW
PLUG
SOL.
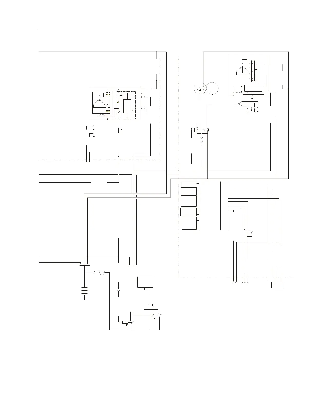
Figure 7-25. Electrical Schematic - ADE - Sheet 4 of 6
1870215 B

Table of Contents

Other manuals for JLG 600A

Related product manuals