EasyManua.ls Logo

Kantech Telephone Entry System - STEP 3: Mounting

Kantech Telephone Entry System
42 pages
Print Icon
To Next Page IconTo Next Page
To Next Page IconTo Next Page
To Previous Page IconTo Previous Page
To Previous Page IconTo Previous Page
Loading...
DN1769-1809
21
Kantech Telephone Entry System Installation Manual
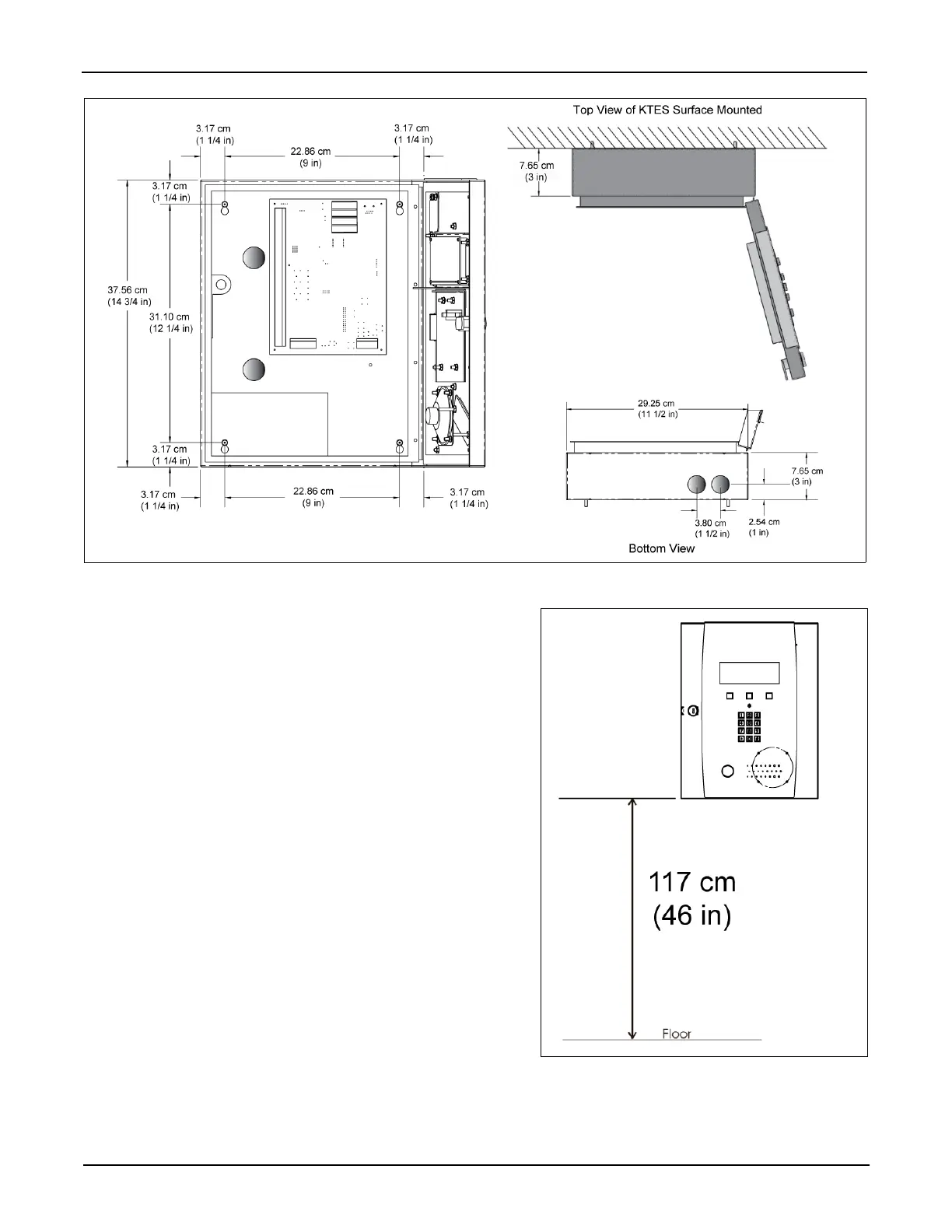
Figure 11: Surface Mount Installation
STEP 3: Mounting
It is recommended that you mount the KTES so that the
bottom of the enclosure is not higher than 117 cm (46 in.)
from the floor. If you install it in a location where there are
extremely low temperatures, the outdoor installation might
require an optional heater kit in order to meet the
environmental conditions.
Caution: Make sure the area stays clear of any objects
below the KTES that could interfere with its daily use.

Table of Contents