EasyManua.ls Logo

Koden CVS-126 - Page 72

Koden CVS-126
73 pages
Print Icon
To Next Page IconTo Next Page
To Next Page IconTo Next Page
To Previous Page IconTo Previous Page
To Previous Page IconTo Previous Page
Loading...
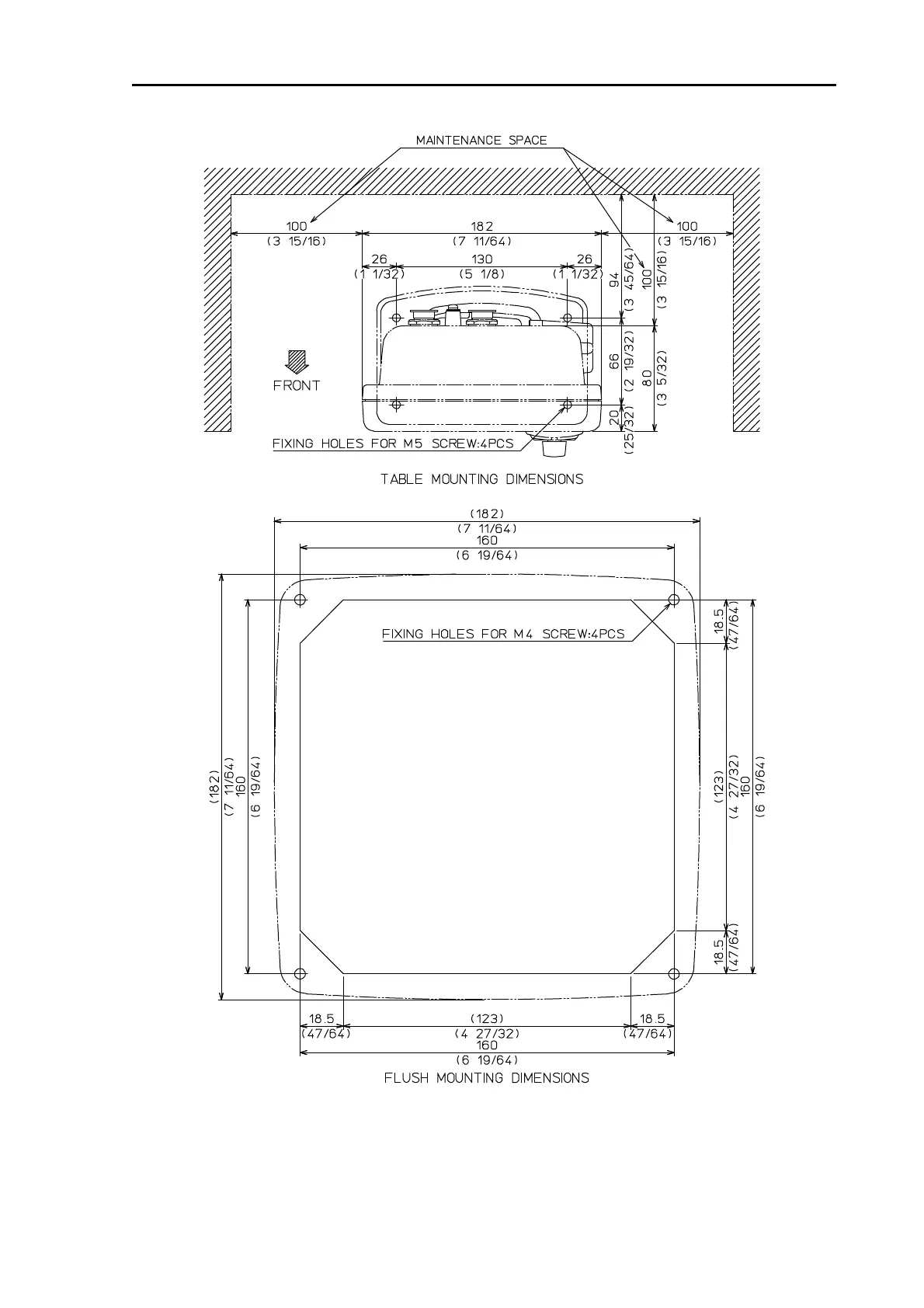
CVS-126 Chapter 6 Table Attached
0093132702-08 6-7
Unit: mm (inch)
Unit: mm (inch)

Table of Contents

Other manuals for Koden CVS-126

Related product manuals