EasyManua.ls Logo

Kohler 20-2250 kW - Fuel Tank Alarms and Gas Fuel Systems; Inner Fuel Tank Alarms and Gas Fuel System Overview

Kohler 20-2250 kW
76 pages
Print Icon
To Next Page IconTo Next Page
To Next Page IconTo Next Page
To Previous Page IconTo Previous Page
To Previous Page IconTo Previous Page
Loading...
TP-6161 1/12 25Section 3 Scheduled Maintenance
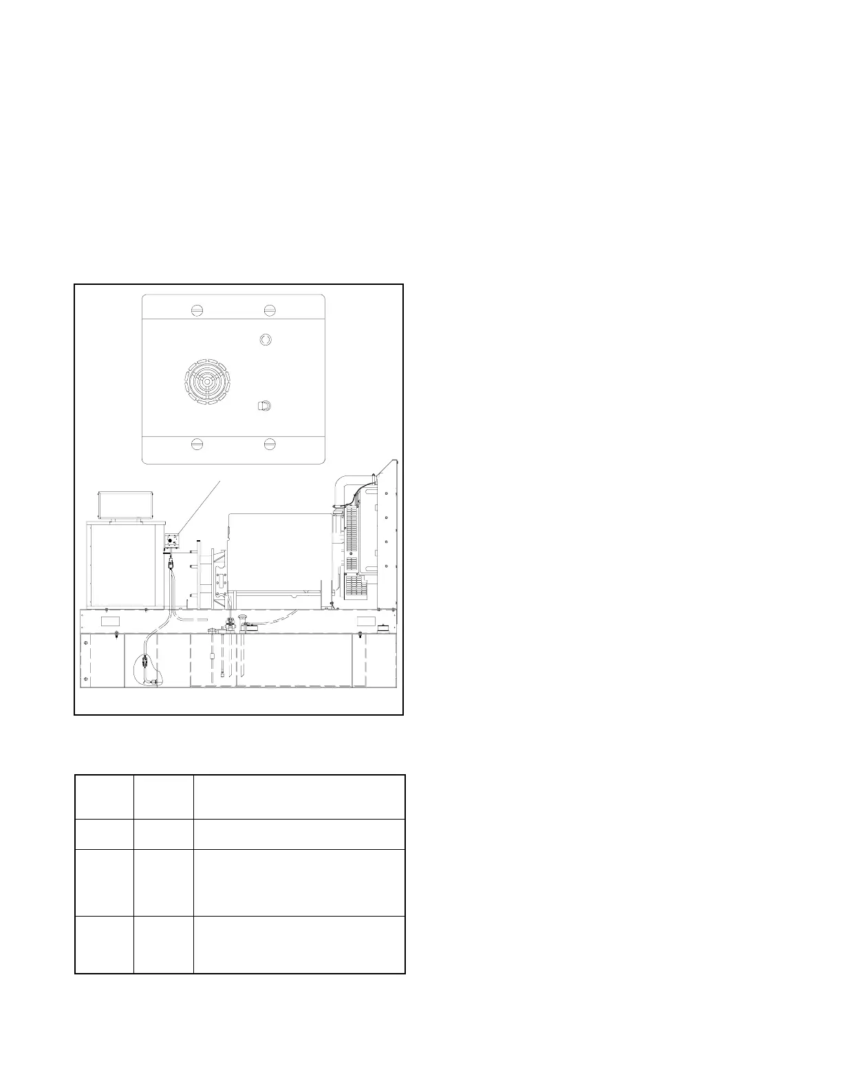
3.5.2 Subbase Inner Fuel Tank Alarm
This kit provides for both audible and visual alarm from a
location remote from the generator set if a leak is
detected in the inner fuel tank of the double-wall
subbase fuel tanks. See Figure 3-2. If the inner tank is
leaking, a sensor installed in the outer tank sends an
electrical signal to the alarm plate when the sensor
becomes immersed in the fuel collecting in the outer
tank. If a leak is detected, the alarm horn will sound and
the fault lamp will light. The alarm horn is quieted by
moving the alarm switch to the SILENCE position; the
alarm lamp remains lit until the fault is corrected. See
Figure 3-3 for troubleshooting information.
Alarm
Normal Silence
Inner Tank
Fuel Leak
Alarm
Leak Alarm Panel
FF-273000-D
Figure 3-2 Inner Fuel Tank Leak Alarm
(20--300 kW Model Shown)
Alarm
Switch
Position
Float
Switch
Position
Observation
Normal Open The alarm horn and the lamp are not
energized.
Normal Closed The alarm horn and lamp activate when
a fuel leak occurs. If the alarm switch is
moved to the silence position the lamp
stays on until the fuel leak fault is
corrected.
Silence Open The alarm horn sounds to alert the user
that the alarm horn switch is not in the
normal position and that the alarm horn
will not sound should a fuel leak occur.
Figure 3-3 Inner Fuel Tank Leak Alarm
Troubleshooting
Resetting Procedure
Use the following procedure to reset the alarm after a
fault alarm.
1. Move alarm switch to the SILENCE position to
stop alarm horn. Lamp will remain lit.
2. Disconnect generator set from load with line circuit
breaker or automatic transfer switch.
3. Repair or replace the inner fuel tank.
4. Move generator set master switch to the OFF/
RESET position and then to the RUN position for
startup. Alarm horn sounds and lamp goes out.
5. Reconnect generator set to load via line c ircuit
breaker or automatic transfer switch.
6. Move generator set master switch to the AUTO
position for startup by remote transfer switch or
remote start/stop switch. Move alarm switch to the
NORMAL position.
3.6 Gas Fuel Systems
This section describes natural gas and liquified
petroleum gas (LPG) fuel systems that are not covered
in the engine operation manual or engine service
manual.
3.6.1 Gas Fuel System Concept
(Single Fuel)
The gas fuel system uses a fuel solenoid valve to control
the fuel flow to the electronic-controlled pressure
regulator (EPR). The generator set-mounted EPR
reduces the fuel pressure as fuel passes to the fuel
mixer. SeeFigure3-4.
The fuel mixer controls the ratio of fuel to air under
varying load and speed conditions. Because the fuel
mixer receives fuel in a gaseous state, it does not have
to vaporize the fuel.
3.6.2 LPG Liquid Withdrawal Fuel
System Concept
With the LPG liquid withdrawal fuel system, pressurized
liquid LPG fuel passes from the tank to a vaporizer. The
vaporizer converts the liquid fuel to gas before sending it
to the fuel EPR. The system also includes a fuel
solenoid valve that shuts off the fuel flow when the
engine stops. Contact an authorized service
distributor/dealer for availability.

Table of Contents

Related product manuals