EasyManua.ls Logo

Kohler 20-2250 kW - Shunt-Trip Breaker and Dry Contact Kits

Kohler 20-2250 kW
76 pages
Print Icon
To Next Page IconTo Next Page
To Next Page IconTo Next Page
To Previous Page IconTo Previous Page
To Previous Page IconTo Previous Page
Loading...
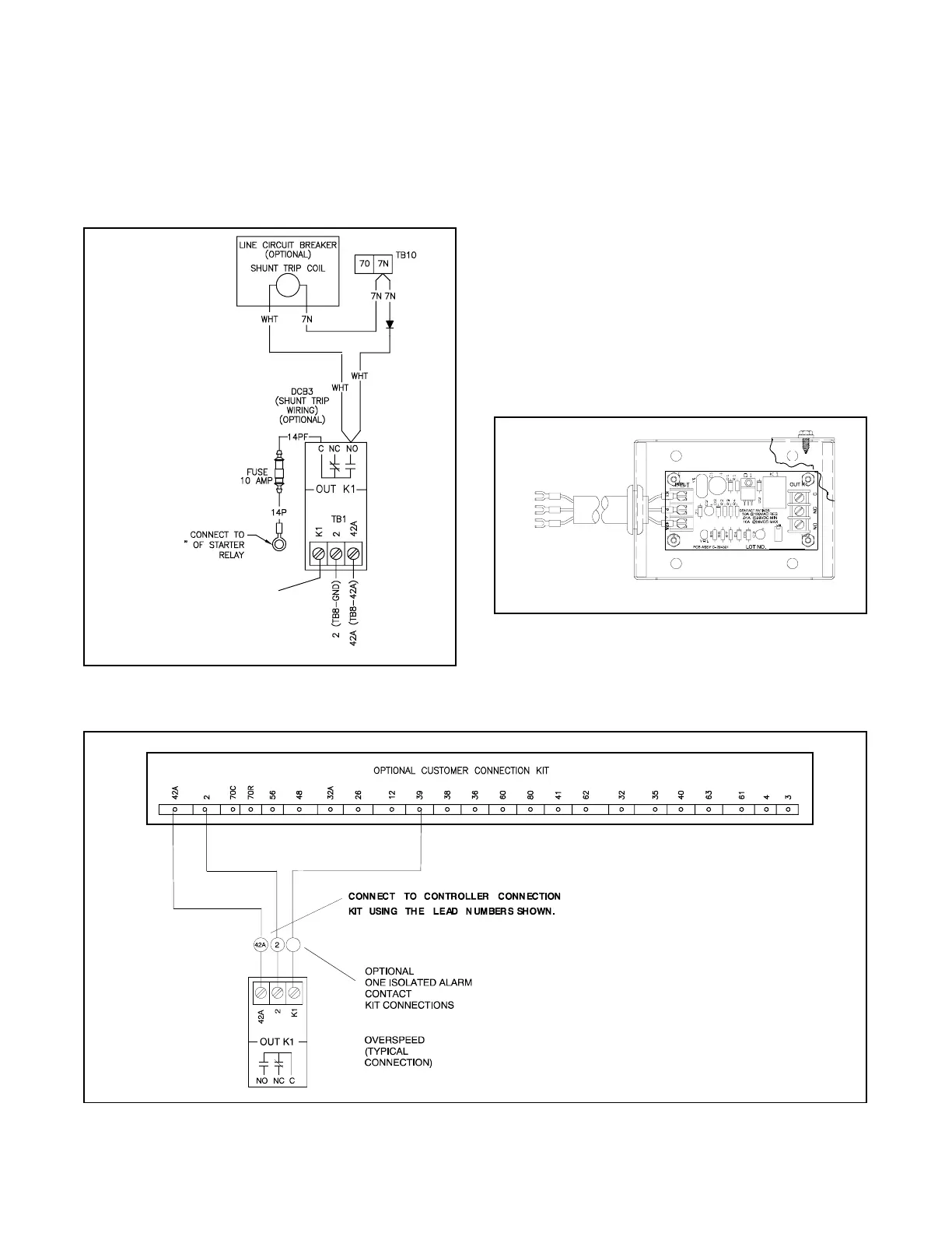
TP-6161 1/12 63Section 6 Accessories
6.1.16 Shunt-Trip Line Circuit Breaker
A shunt-trip line circuit breaker provides a 12- or 24-DC
volt solenoid within the line circuit breaker case that can
energize the trip mechanism. This feature allows the
circuit breaker to be tripped by a customer-selected fault
such as an overspeed, auxiliary, or defined common
fault. Connection requires a shunt-trip wiring kit and a
dry contact kit. See Figure 6-28.
GM16088A-H
Typical Connection:
Auxiliary (26),
Defined Common Fault Line 1 (32),
Defined Common Fault Line 2 (32A), or
Overspeed (39)
Figure 6-28 Shunt-Trip Line Circuit Breaker and
Shunt-Trip Wiring Kit Connections
6.1.17 Single-Relay Dry Contact Kit
(DEC 3+)
The single-relay dry contact kit uses one set of contacts
to trigger customer-provided warning devices if a fault
condition occurs. Connect any controller fault output
connection from the TB1 terminal strip to the single-
relay kit. Use the single-relay dry contact kit as a
common fault relay for signaling any of the following
common fault conditions:
D Emergency Stop (48)
D Auxiliary (26)
D Overspeed (39)
D Low Oil Pressure (38)
D High Engine Temperature (36)
Connect a maximum of three dry contact kits to a single
controller output. See Figure 6-29 and Figure 6-30.
A-273945
Figure 6-29 Single-Relay Dry Contact Kit, Typical
GM16088A-A/328912A-H
CONTROLLER CONNECTION KIT MOUNTED IN JUNCTION BOX
Figure 6-30 Single-Relay Dry Contact Kit Connections

Table of Contents

Related product manuals