EasyManua.ls Logo

Kohler 20-2250 kW - Twenty-Relay Dry Contact Kit

Kohler 20-2250 kW
76 pages
Print Icon
To Next Page IconTo Next Page
To Next Page IconTo Next Page
To Previous Page IconTo Previous Page
To Previous Page IconTo Previous Page
Loading...
TP-6161 1/12 65Section 6 Accessories
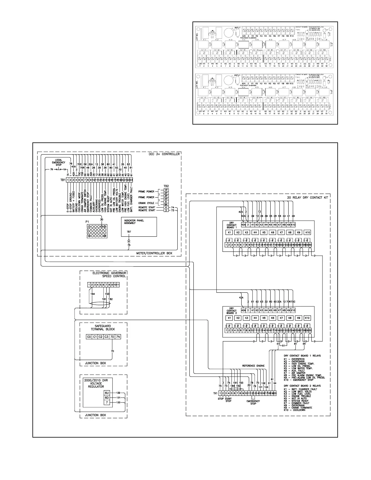
6.1.19 Twenty-Relay Dry Contact Kit
(450 kW and Larger Models Only)
(DEC 3+)
The twenty-relay dry contact kit provides normally open
and normally closed contacts in a form C configuration
to activate warning devices and other user-provided
accessories allowing remote monitoring of the
generator set. Typically, lamps, audible alarms, or other
devices signal faults or status conditions. Connect any
generator set fault output to the dry contact kit.
Refer to Figure 6-33 for an internal view of the contact
kit. See Figure 6-34 for electrical connections. See
Section 6.2, Accessory and Prime Power Terminal Strip
Connections, for terminal identification.
D-294303-D
Figure 6-33 Twenty-Relay Dry Contact Kits
GM16759D-C/328912A-H
Figure 6-34 Twenty-Relay Dry Contact Relay Kit Connections

Table of Contents

Related product manuals