EasyManua.ls Logo

Kone MX20 - Page 67

Kone MX20
116 pages
Print Icon
To Next Page IconTo Next Page
To Next Page IconTo Next Page
To Previous Page IconTo Previous Page
To Previous Page IconTo Previous Page
Loading...
KONE Maintenance Method
MX10 / MX20 MCP Procedures - ASME A17.1-2013 / CSA B44-13
© 2014 KONE Corporation PSK8-604-MX10/MX20
All rights reserved.
67 (-) 2014-12-15
6) Run elevator DOWN on inspection and verify that safeties hold load and machine either slips
traction or stalls to determine if set was successful.
7) Check that car has stopped level.
8) Reset governor and safety by running elevator UP on inspection from machine room.
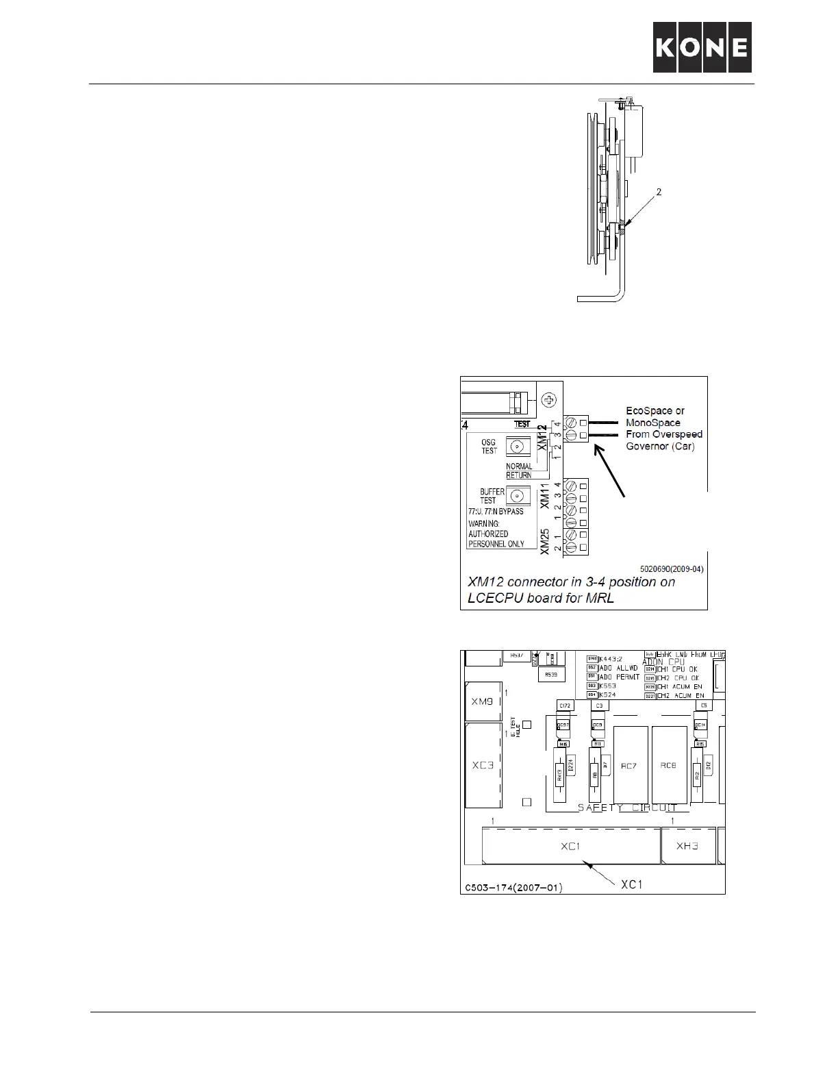
OL35 governor
XM12 connector in 3-4
position on LCECPU
board for MRL
OL35 governor:
While car is running down, push screwdriver through
hole (2) in side of governor until governor sets.
b) MRL
Move 2-pin XM12 connector on
LCECPU to test, 3-4 position.
With car running down, push OSG TEST
button until governor sets.
5) Temporarily jumper safety plank switch by
jumpering LCEADON2 XC1/3-5.

Table of Contents

Related product manuals