EasyManua.ls Logo

Kone MX20 - Page 92

Kone MX20
116 pages
Print Icon
To Next Page IconTo Next Page
To Next Page IconTo Next Page
To Previous Page IconTo Previous Page
To Previous Page IconTo Previous Page
Loading...
KONE Maintenance Method
MX10 / MX20 MCP Procedures - ASME A17.1-2013 / CSA B44-13
© 2014 KONE Corporation PSK8-604-MX10/MX20
All rights reserved.
92 (-) 2014-12-15
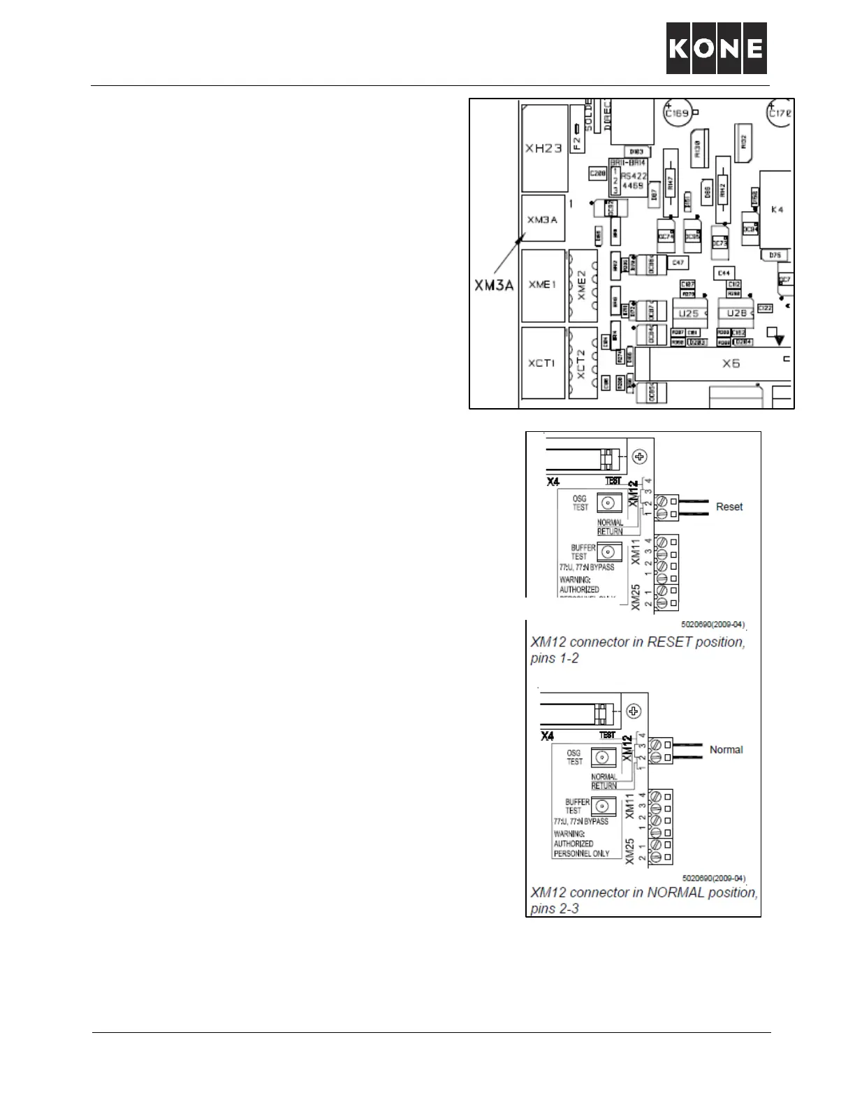
13) Remove temporary jumper LCEADON2 XM3A/1-3.
14) Run car to location where you can access the car roof.
15) Run car on top of car inspection to location where safeties set.
9) Install temporary jumper LCEADON2 XM3A/1-3
to jumper the electrical overspeed switch.
10) Remove lock out tag and turn ON controller
power.
11) Run the car down on machine room inspection
until the safeties reset.
Run the car down no more than two feet.
Note:
It may be necessary to turn on enable
traction test to give an additional boost to get
car off safeties. Traction test resets after each
start. Several attempts may be required to get
car off safeties; traction test must be set
before each start.
12) Reset governor as follows:
EcoSystem MR®
OL100 governor: Use lever provided with
governor to reset mechanical jaw. Manually reset
electrical overspeed switch.
OL35 governor: Mechanical portion automatically
resets when car runs up. Manually reset electrical
switch.
MRL:
Mechanical portion resets automatically when car
runs down.
Locate XM12 2-pin connector for counterweight
governor. Plug connector into XM12/1-2 RESET
(RETURN) position and push OSG test button.
Unplug counterweight governor XM12 2-pin
connector and reinstall XM12 2-pin connector
from car governor to XM12/2-3 NORMAL
position.

Table of Contents

Related product manuals