EasyManua.ls Logo

Kyocera FS-1030MPF

Kyocera FS-1030MPF
270 pages
To Next Page IconTo Next Page
To Next Page IconTo Next Page
To Previous Page IconTo Previous Page
To Previous Page IconTo Previous Page
Loading...
2MH/2MJ/2MK/2ML
1-5-40
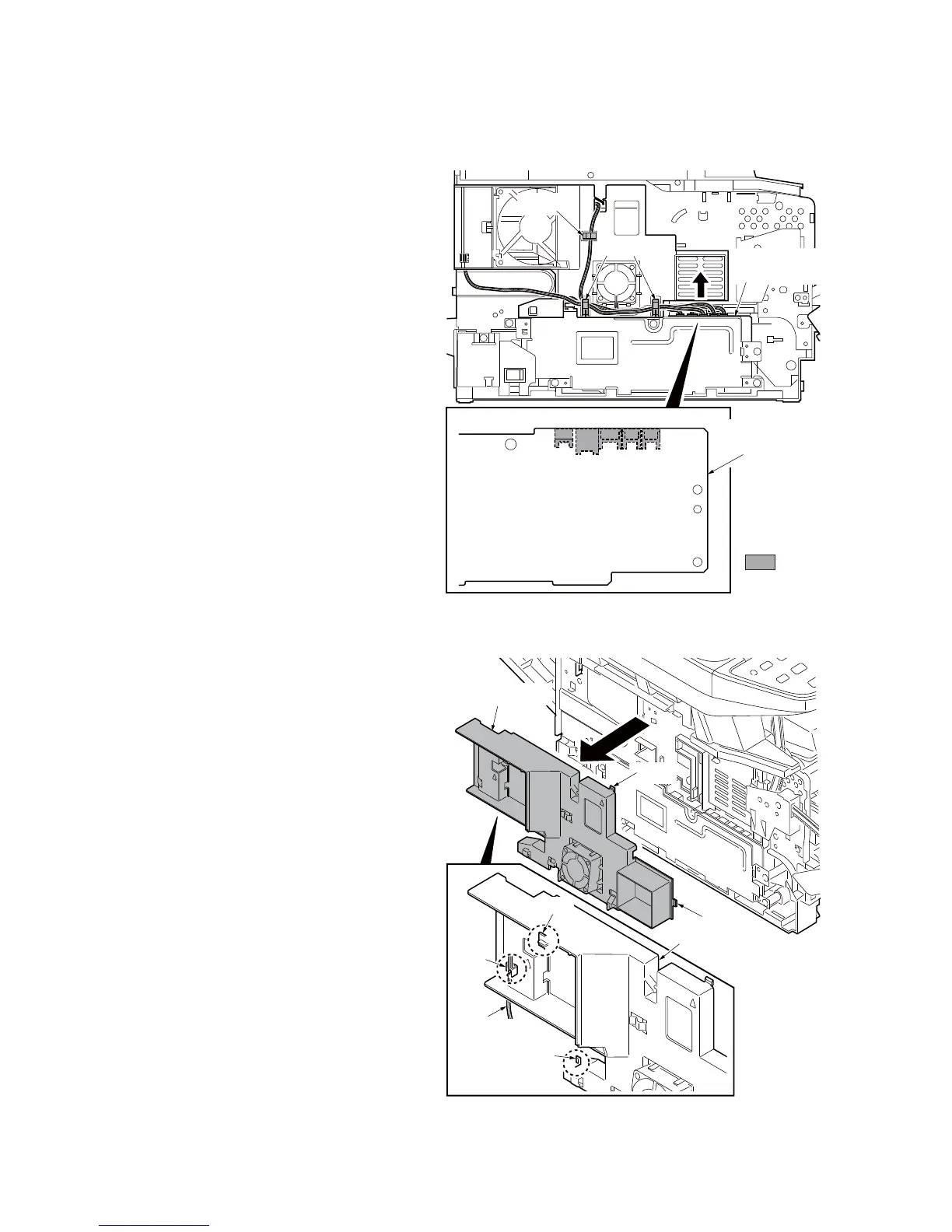
(2) Detaching and refitting the power source PWB
Procedure
1. Remove the left cover (See page 1-5-
3).
2. Remove the wires from three clamps.
3. Remove five connectors from the power
source PWB.
Figure 1-5-59
4. Unhook four hooks and then remove
the frame left duct.
5. Remove the wire from the clamp.
Figure 1-5-60
YC107
YC104
YC106
YC108
YC105
Clamp
Clamps
Connectors
Power source
PWB
Connectors
Power source
PWB
Frame left duct
Frame left duct
Hook
Hook
Hook
Clamp
Wires
Hook

Table of Contents

Related product manuals