EasyManua.ls Logo

Lamborghini Caloreclima EM 3 ST-E - DIMENSIONI MM; Componenti Principali

Lamborghini Caloreclima EM 3 ST-E
Print Icon
To Next Page IconTo Next Page
To Next Page IconTo Next Page
To Previous Page IconTo Previous Page
To Previous Page IconTo Previous Page
Loading...
- 7 -
ITALIANO
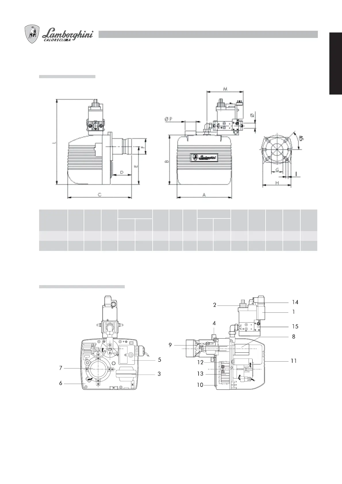
DIMENSIONI mm
COMPONENTI PRINCIPALI
Legenda
1 Pressostato gas
2 Valvola di funzionamento
3 Trasformatore di accensione
4 Flangia attacco caldaia
5 Apparecchiatura
6 Piastra componenti
7 Motore
8 Pressostato aria
9 Testa di combustione
10 Corpo bruciatore
11 Cofano
12 Serranda aria
13 Ventola
14 Valvola di sicurezza
15 Filtro stabilizzatore
* Le dimensioni sono relative al bruciatore con rampa da 20 mbar installata.
EM 3 ST-E
EM 6N ST-E
250
280
215
247
320
342
160
195
80
80
-
-
85
135
135
1/2”
1/2”
Modello
A
B
C
D
Ø F
Ø H
Ø*
min. max.
min. max.
160
160
M8
M8
E
Ø G
I
90
90
L*
M*
410
410
145
145
60
80
Ø P

Related product manuals