EasyManua.ls Logo

Lamborghini Caloreclima EM 3 ST-E - Componentes Principales; Medidas

Lamborghini Caloreclima EM 3 ST-E
Print Icon
To Next Page IconTo Next Page
To Next Page IconTo Next Page
To Previous Page IconTo Previous Page
To Previous Page IconTo Previous Page
Loading...
- 79 -
ESPAÑOL
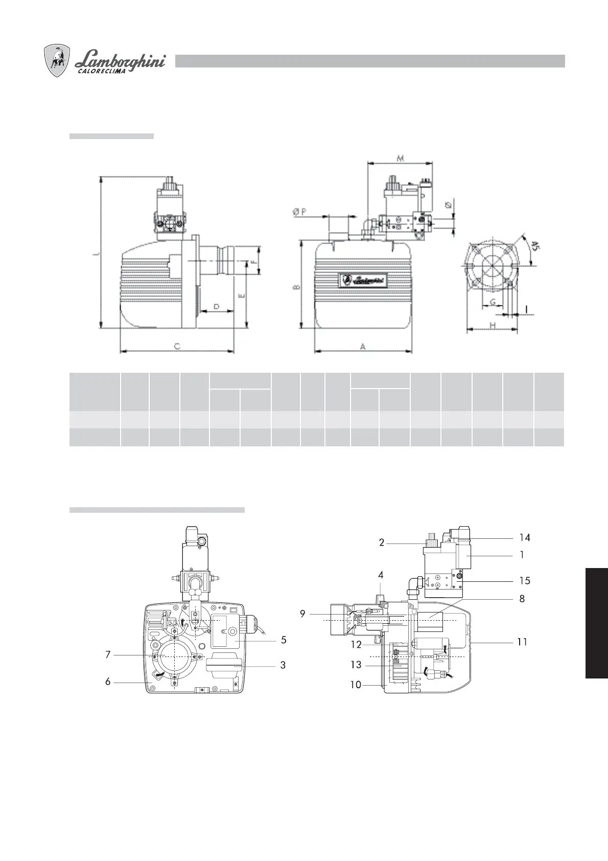
MEDIDAS mm.
COMPONENTES PRINCIPALES
Descripción
1 Presóstato gas
2 Válvula de funcionamiento
3 Transformador de encendido
4 Brida para unirlo a la caldera
5 Caja de control
6 Placa componentes
7 Motor
8 Presostato aire
9 Cabeza de combustión
10 Cuerpo del quemador
11 Tapa protectora
12 Clapeta del aire
13 Ventilador
14 Válvula de seguridad
15 Filtro estabilizador
* Las dimensiones corresponden al quemador con una rampa de 20 mbar instalada.
EM 3 ST-E
EM 6N ST-E
250
280
215
247
320
342
160
195
80
80
-
-
85
135
135
1/2”
1/2”
Modelo
A
B
C
D
Ø F
Ø H
Ø*
min. max.
min. max.
160
160
M8
M8
E
Ø G
I
90
90
L*
M*
410
410
145
145
60
80
Ø P

Related product manuals