EasyManua.ls Logo

Leisure UNITY 2018 - Page 69

Leisure UNITY 2018
138 pages
Print Icon
To Next Page IconTo Next Page
To Next Page IconTo Next Page
To Previous Page IconTo Previous Page
To Previous Page IconTo Previous Page
Loading...
67
UNITY MOTORHOME APPLIANCE AND EQUIPMENT OPERATION
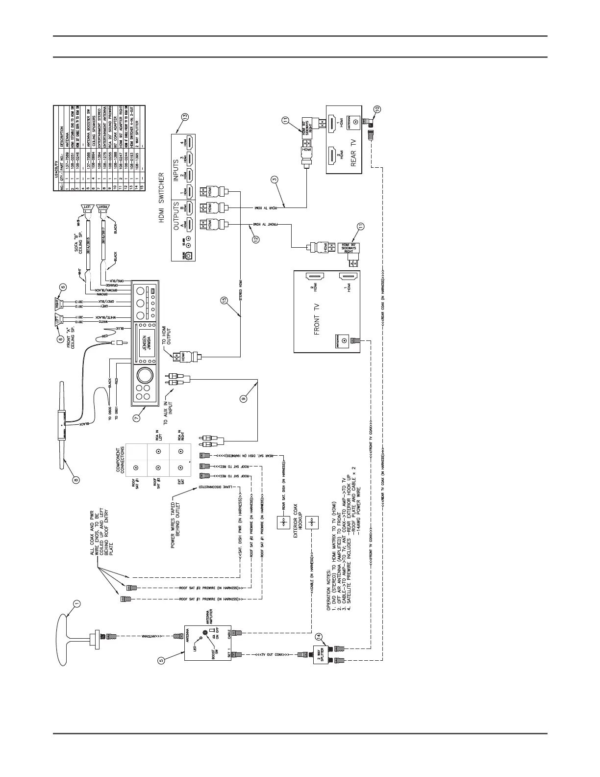
U24CB/FX ENTERTAINMENT SYSTEM SCHEMATIC

Table of Contents