EasyManua.ls Logo

Lenze 4800 - Page 120

Lenze 4800
342 pages
Print Icon
To Next Page IconTo Next Page
To Next Page IconTo Next Page
To Previous Page IconTo Previous Page
To Previous Page IconTo Previous Page
Loading...
Configuration
7-29
48XX/49XXSHB0399
7.1.5.3 Freely assignable analog inputs (FAI)
Term inal 8
Term inals 1, 2
Term inal 6
Term inals 3, 4
M otor potentiom eter
O u tp u t a rith m e tic b lo c k
D ig. frequency
M ain setpoint C 046
N o input
Torque lim it C 047
Additional setpoint C 049
Act. value speed controller C 051
Additional torque setpoint
Vp of the speed controller
V p o f th e p ro c e s s c o n tro lle r
Setpoint of the process controller
Lim itation for process controller
Input 2 of arithm etic block
A/D code 1
A/D code 2
Field current setpoint
Signal input (C 146)
A
nalog signal (C 145)
Resolver
Process controller output
Fixed setpoints
Input 1 of arithm etic block
4900Str038
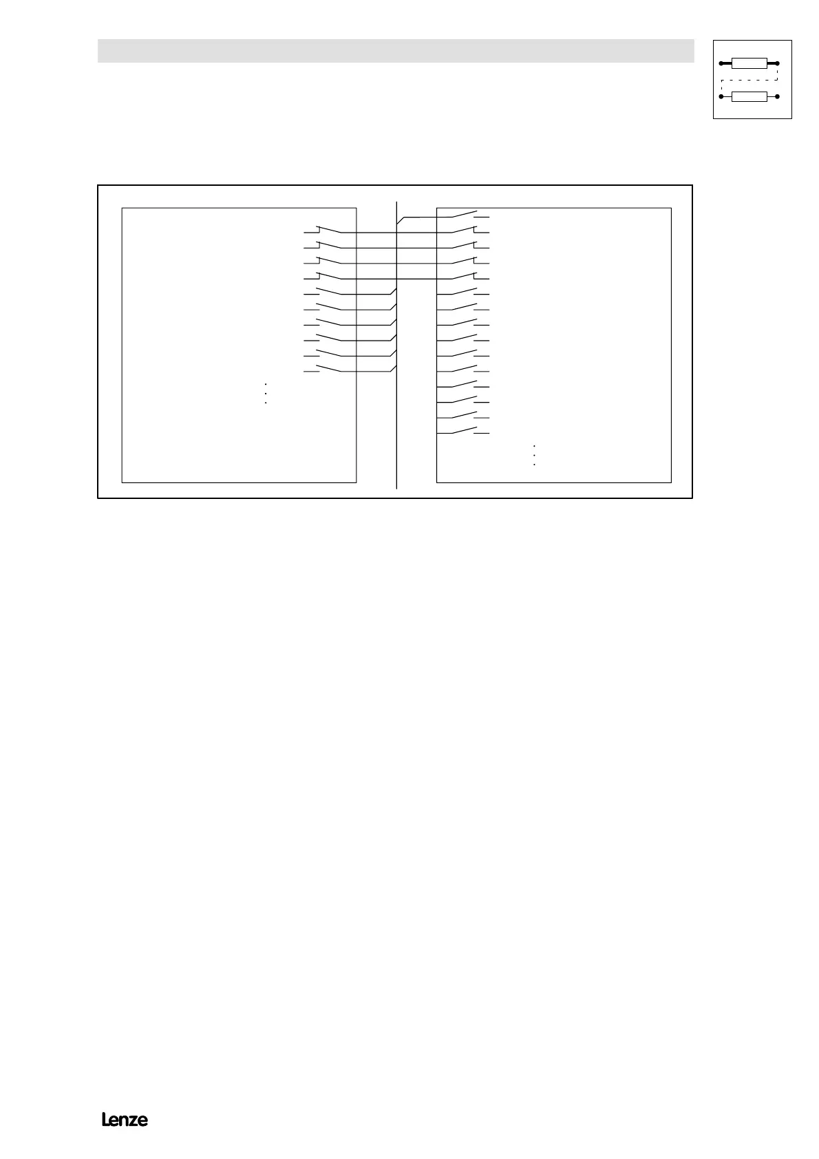
FIG 7-11 FAI assignment with factory setting in configuration C005 = -11-
With each configuration changeover the corresponding analog signals are
assigned to the signal inputs -according to the configurations -.Itisalsopossible
to reassign the inputs according to your application.
An analog signal can only be assigned to one function. If an analog singal has
already been programmed for the selected signal input, the previous assignment
will be overwritten.
A prioritization of the FAI ensures that terminal signals (X1/1 ... X1/8, X5, X7, X9)
can be used even if the operating mode C001 is set to interface or keypad control.
If an analog signal is assigned to a code, this input code is for display only. If the
assignment of the analog signal to the code is deactivated (e.g. by reassigning the
analog signal), the code stays on the value valid at that time.
If the input code is not linked with an analog signal, it can also be assigned to a
constant value which can also be stored in EEPROM under C003.
Exception: Parameters cannot be stored in codes C046, C047, C049 and C392.
The assignment of an analog signal to C270 or C271 (A/D-converter) enables a
digital evaluation of the analog input signal via interface.
Show/Hide Bookmarks

Table of Contents

Related product manuals