EasyManua.ls Logo

Lenze 4800 - RFI Filter for Fan Supply

Lenze 4800
342 pages
Print Icon
To Next Page IconTo Next Page
To Next Page IconTo Next Page
To Previous Page IconTo Previous Page
To Previous Page IconTo Previous Page
Loading...
Automation
13-14
48XX/49XXSHB0399
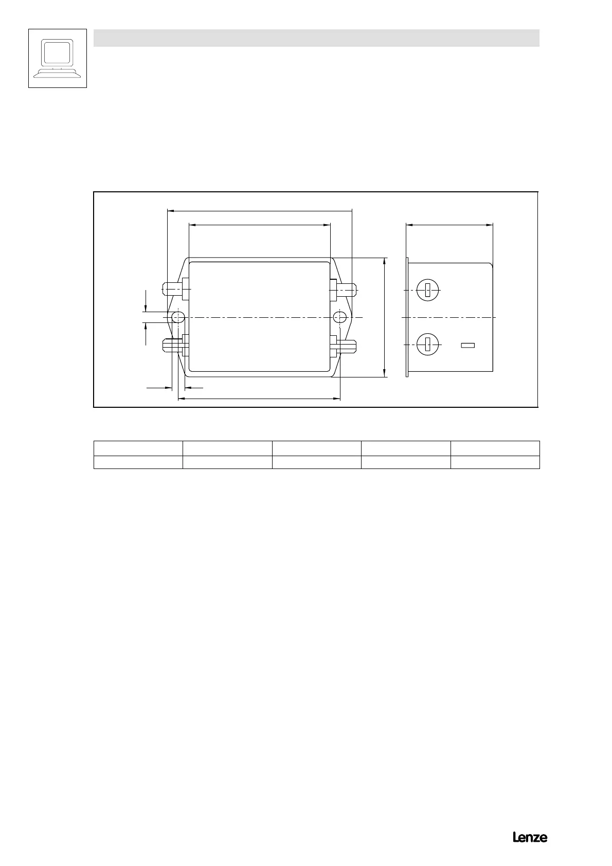
13.4.2 RFI filter for fan supply
The 4X08 to 4X13 controllers must be connected to a voltage between 200 ...
240V~ to supply the fan.
Use the following RFI filter to ensure the CE conformity of the drive system:
LINE
LOAD
L1
NPE
L1
N
PE
N
L1
6
65
85
75
40
55
5
4900Str098
FIG 13-12 RFI filter for fan supply
Type
I
rated
[A] V
max
[V] m[kg] Order designation
4X08 ... 4X13 4 250 0.25 EZF1-004A001
Show/Hide Bookmarks

Table of Contents

Related product manuals