EasyManua.ls Logo

Lenze 4800 - Page 72

Lenze 4800
342 pages
Print Icon
To Next Page IconTo Next Page
To Next Page IconTo Next Page
To Previous Page IconTo Previous Page
To Previous Page IconTo Previous Page
Loading...
Installation
4-34
48XX/49XXSHB0399
4900Str022
l
l
L1L2L3
PE
2 3
10
11
9
8
12
1
14
13
L
7
5
4
6
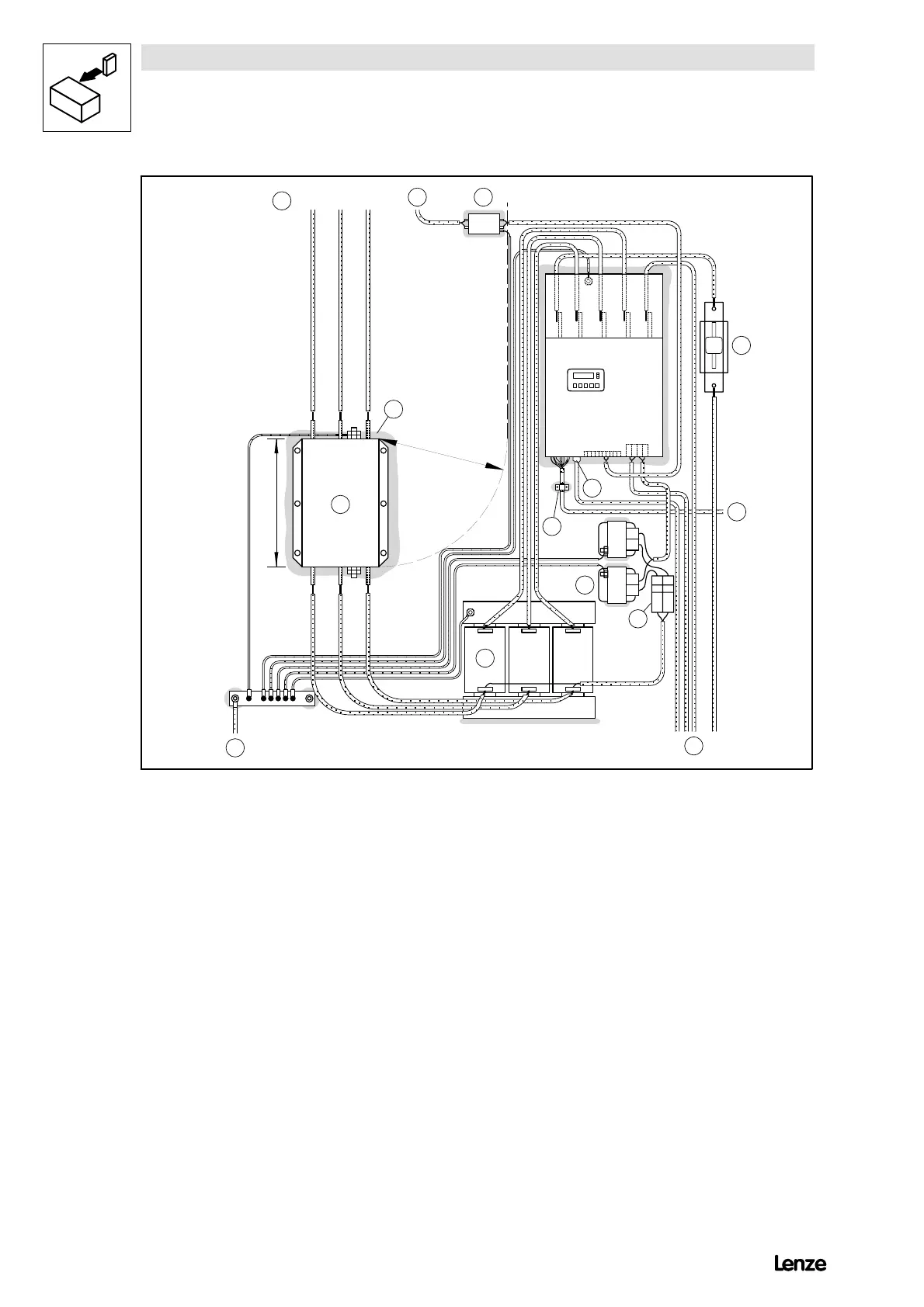
FIG 4-24 Part of the CE-typical drive system with 4X08/4X09 on a mounting plate
1 Connection mains fuse
2 Connection fan supply L1/N
3 RFI filter
4 Armature fuses
5 Screened signal cables
6 Metal plug-in casing connected to screen or Lenze system cable
7 Uncoated surface for screen connection
8 Mains choke field supply
9 Line protection fuses for field supply
10 Motor connection with screened cable for act. value encoder
11 Commutating choke
12 PE connection
13 RFI filter
14 Uncoated, bare metal contact surfaces
Show/Hide Bookmarks

Table of Contents

Related product manuals