EasyManua.ls Logo

Liebert 1000kVA - Figure 60 Emergency Power off; Remote Emergency Power off

Liebert 1000kVA
120 pages
Print Icon
To Next Page IconTo Next Page
To Next Page IconTo Next Page
To Previous Page IconTo Previous Page
To Previous Page IconTo Previous Page
Loading...
Operation
81
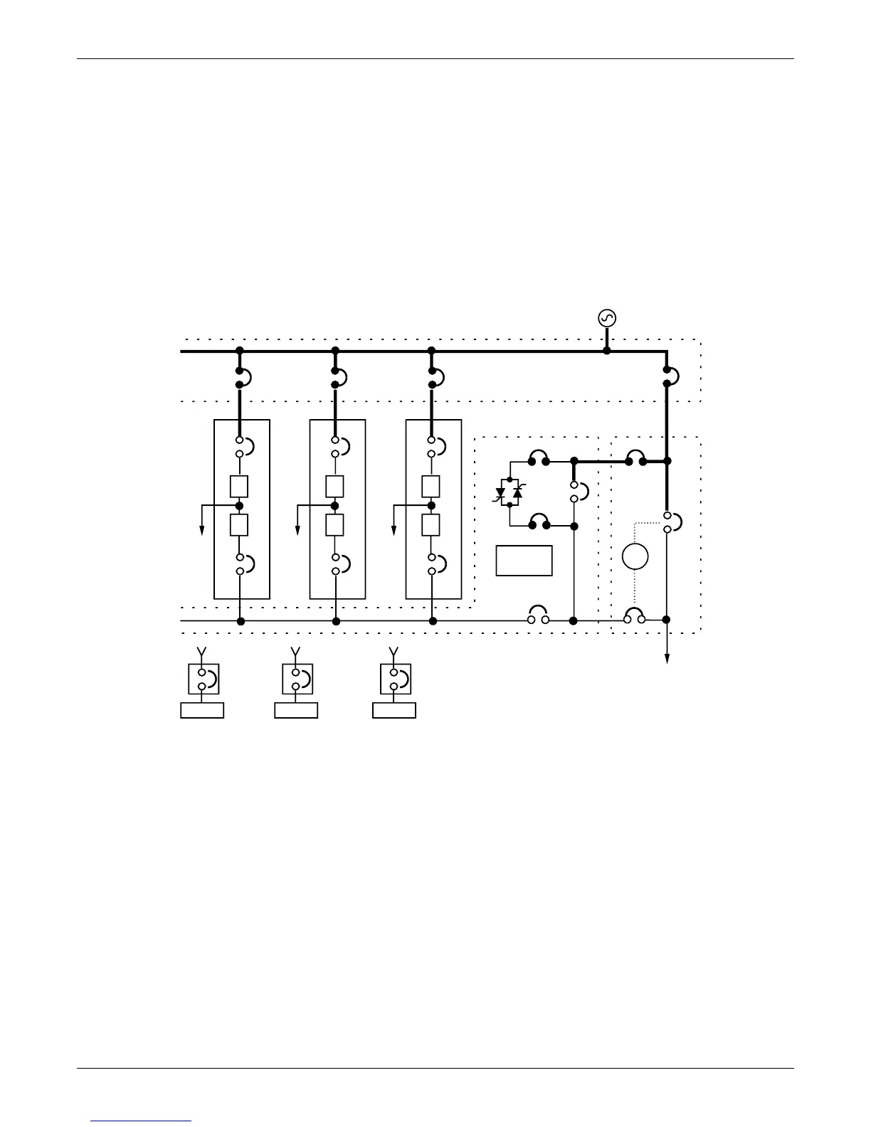
3.3.8 Remote Emergency Power Off
The Remote Emergency Power Off (REPO) mode is used to remove all power from the critical load.
The Remote Emergency Power Off control is a switch located remotely from the UPS system. It will
normally be in the same room as the critical load equipment. This mode can also be initiated by an
automatic contact closure in the same external circuit as the manually operated switch.
When you operate the Remote Emergency Power Off switch, all UPS circuit breakers are opened,
including the bypass circuit breaker. All power through the UPS is removed from the load. Typically,
the REPO circuit also opens the circuit breakers that provide power to the bypass lines and the UPS
controls.
Refer to 3.4.5 - Shutdown Procedures.
Figure 60 Emergency power off
BIB
SKRU
MIB
MBB
I
R
#2UPS
CB1
CB2
System
Controls
RIB RIB
RIB BFB
SBB
SBS
RIB RIB
RIB BFB
#1UPS#3UPS
I
R
#1UPS
CB1
I
R
#3UPS
CB1
CB2 CB2
Output
SCCT
SCCT
(can accommodate up to 6 UPS modules)
To Critical Load
Battery
MBD
Battery
MBD
Battery
MBD

Table of Contents

Related product manuals