EasyManua.ls Logo

Liebert CR035 - Page 79

Liebert CR035
79 pages
Print Icon
To Previous Page IconTo Previous Page
To Previous Page IconTo Previous Page
Loading...
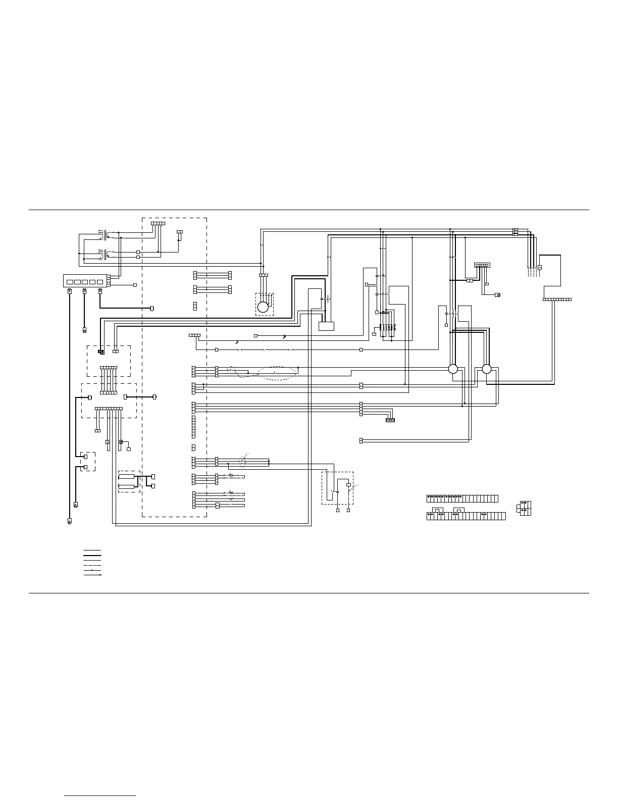
Appendix 6 Wiring Diagram 69
Liebert.CRV Series Air Conditioner User Manual
380V415V/50Hz 3N
L2
BK
BK
3
4
L1
1
2
BK
NL3 PE
6
5
8
7
PE
Main switch
QS
2 4
BK
BK
1
Fan breaker
QF1
3
A1
A2
2
1
4
3
6
5
14
13
3
3
2 4 6
BK
BK
BK
1 5
Heater breaker
QF5
A1
A2
2
1
4
3
6
5
14
13
3
A1
A2
2
1
4
3
6
5
2 4
BK
BK
1
Humidifier
breaker
QF7
A1
A2
2
1
4
3
6
5
3
LN -+ PE
AC/DC Supply unit
AL
2 4
BK
BK
1
Transformer
breaker
QF8
3
PE1
Fan contactor
KM1
FAN1-NC
FAN1-COM
0-10(3)
FAN1-GND(2)
FAN2-NC
00
Y1
P5
710
054
i-COM
A1
Heat
contactor1
KM6
Humidifier
contactor
KM7
0
24
ST13-C ST13-NC
Thermostat
P2 1 2 3 4
ST12-C ST12 -NC
Manual Thermostat
0
0
Door switch1 Doo r switch2 Door switch3
52
53
63
62
P8
84
83
82
81
Delivery air probe
P10
NC
NOCF-COM
Clogged filter alarm
106
105
Water under floor switch
1
2
3
4
1
2
3
4
5
6
1
2
3
4
P7
1
2
3
4
P14
1
2
3
4
P12
1
2
3
4
5
6
7
8
P6
1
2
3
4
P17 1
2
G0
Y2
24
Y
G
G0
Chilled water valve
71
70
Factory supplied line voltage wiring
Factory supplied 24 volt wiring
Device own line
Notes:
Connection bars
QS-7
XP-1
FAN2-COM
XP-3
XP-5
BK
BKTB-70
TB-71
TB-24
TB-G0
TB-Y2
TB-00
TB-Y1
TB-710
TB-054
CWV-G
CWV-G0
CWV-Y
QS-5
QS-3
QS-1
PE1
QF1-2
QF1-4
KM1-1
KM1-5
KM1-A1
KM1-13
KM1-2
KM1-6
KM1-14
KM1-A2
Y/GN
Y/GN
FAN1-L1
XPE
AL-N
AL-L
AL-PE
XPE
QF5-2
QF5-4
QF3-6
KM6-1
KM6-3
KM6-5
KM6-2
KM6-4
KM6-6
KM5-1
KM5-3
KM5-5
KM5-A1
KM5-A2
KM6-A1KM6-A2
KM5-13KM5-14
KM5-2
KM5-4
KM5-6
TB-0
EH-1
EH-3
EH-5
EH-2
EH-4
EH-6
EH-N1
EH-N3
EH-N5
EH-N2
EH-N4
EH-N6
QF7-2
QF7-4
KM7-A1
KM7-1
KM7-5
KM7-A2
KM7-2
KM7-6
SL A
D
HUM-SL
HUM-A
HUM-D
BK
BK
QF8-2
QF8-4
R8 S8
TB-R8
TB-S8
BK
BK
A1-P2-4
A1-P2-3 BK
TB-52
TB-53
TB-62
TB-63
TB-81
TB-82
TB-83
TB-84
TB-105
TB-106
A1-P5-1
A1-P5-2
A1-P5-3
A1-P5-4
A1-P7-1
A1-P7-2
A1-P7-3
A1-P7-4
A1-P14-1
A1-P14-2
A1-P14-3
A1-P14-4
A1-P6-1
A1-P6-2
A1-P6-3
A1-P6-4
A1-P8-1
A1-P8-2
A1-P8-3
A1-P8-4
A1-P10-3
A1-P10-4
A1-P10-5
A1-P10-6
MP1-NO MP1-C MP2-NO MP2-C MP3-NO MP3-C
50
TB-50
19
TB-19
1 2
CF-NC
COM
0 0 0 0 0 24 24 2 4 24 24 105106 400401402 300301302
51 51 52 53 53 54 054 61 61 62 63 81 82 83 84 710710 Y2 G0 70 71 395
19
Y1 Y1
00 00
U02
U01
R8
S8
PE9
TB-R8
TB-S8
TB-PE9
Ethernet or CAN wiring
Inline quick disconnect
BK
Y/GN
Y/GN Y/GN
BK
BK
BK BK
BL
BK BK
BK
BK
BK
BK
BK
BK
BK
BK
BK
BK
BK
BK
BK
BK
BK
BK
BK
BK
BK
BK
BK
BK
BK
BK
BK
Terminal block
Humidifier
Heat
contactor2
KM5
Fan1 Fan2
XPE
KM1-3
KM1-4FAN1-L2
FAN1-L3
FAN2-L1
FAN2-L2
FAN2-L3
1
3
5
2
4
6
XP
ALL+
AL-L-
50
Remote ON/OFF
Fire sensor
51
54
TB-51BK
TB-54
BK
6
BK
5
QF1-6
61
TB-61 BK
BK
Naked crimping connector
TB-U01
U02
TB-U02
U01
XPE
XPE
XPE
XPE
XPE
LWD
Remote display cable supply
Condensate
pump
BR
BR
P P
Optional
P1 1 2 3 4 5
24
0
P3 1 2
Etherent switch
A1-P1-1
A1-P1-2
A1-P1-3
A1-P1-4
A1-P3-1
A1-P3-2
TB-24
TB-0
BK
BK
BK
BK
BK
BK
6 5 4 3 2 1
P3 P4
Isolation board
A6
P1
TAM
BK
BK
A6-P3
A6-P4
P64
A1-P64
A3
Humidification control board
A5
1 2 3 4 5 6P1
1 2 3 4 5 6P2 7 8 9 10
24 0
XPE
Drain
solenoid
valve
P66 P67
A6-P1-6
A6-P1-5
A6-P1-4
A6-P1-3
A6-P1-2
A6-P1-1
A5-P1-1
A5-P1-2
A5-P1-3
A5-P1-4
A5-P1-5
A5-P1-6
A5-P2-1
A5-P2-2
A5-P2-5
A5-P2-6
A5-P2-7
A5-P2-8
A5-P2-9
A5-P2-10
TB-24
TB-0
XPE
A5-P66 A1-P67
BK
BK
BK
BK
BK
BK
BK
BK
BK
BK
BK
BK
BK
BK
YV07-2YV07-1
YV7-2YV7-1
Charge
solenoid
valve
THB
1
401
400
402
301
300
302
2
3
1
2
3
TB-400
TB-401
TB-402
TB-300
TB-301
TB-302
A1-P161
A1-P162
A1-P163
A1-P151
A1-P152
A1-P153
BK
BK
BK
BK
BK
BK
P16
P15
1
2
3
P4
Remote-DIS
A1
A2
14
11
12
0
395
24
Optional
Heat and humidification
lockout relay
K1
User input
No signal input, with a short
connection cable
No signal input, with a short connection cable
Smoke sensor
Wire color code
BK-Black P-Purple
R-Red
WH-White
BL-Blue
BR-Brown
Y/GN-Yellow green
YE-Yellow
A3
RT2
Local display
Local-DIS
Local-DIS
Local display
Only for large display
THB
THB
P67
A5-P67
A3
Remote large
display
Remote-DIS
A3
XPEXPEXPEXPEXPEXPEXPEXPEXPEXPEXPE
P63
P65
Network Comm unication
Interface
INTELLISLOT1
INTELLISLOT2
TSC
Cold water temperature sensor
0-10(3)
FAN2-GND(2)
Transformer T2
Transformer TC
TC-6
TC-5
T2-6
T2-5
4
T2-1
3
2
4
TC-1
3
2
BK
BK
BK
BK
BK
BK
BK
BK
XPE
A3-PE
XPE
V2-
V2
+
PE
A3-V1-
A3-V1+
V
1
V1+
-
Figure 20 CR040 air conditioner

Table of Contents

Related product manuals