EasyManua.ls Logo

LifeSafety Power FlexPower

Default Icon
20 pages
To Next Page IconTo Next Page
To Next Page IconTo Next Page
To Previous Page IconTo Previous Page
To Previous Page IconTo Previous Page
Loading...
FlexPower DC Power System Installation Manual
iv 1
Installation and Operation
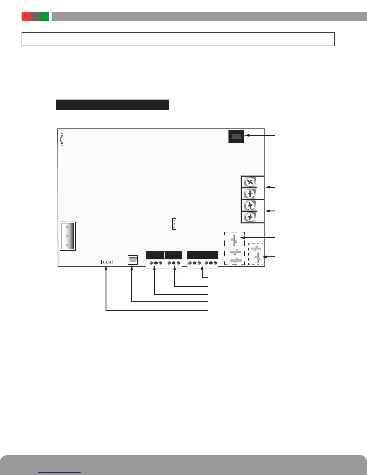
This section gives a quick visual guide of installation connections and settings for installers already familiar with the Flex-
Power line of power supplies. For full information, please read this entire manual before installing.
+ –+ –+ –+ –
AC Input
Battery
Presence Jumper
Battery
Presence Jumper
Cut for
230VAC input
FAI Input - section 1.2 #10 & section 1.3
Fault Contacts/AC - section 1.2 #8
Fault Contacts/System - section 1.2 #8
Flex IO Connector - section 1.2 #6
Earth Ground Jumper - section 1.2 #5
section 1.2 #3section 1.2 #3
section 1.2 #1section 1.2 #1
QUICK INSTAL - SECTION FINDER
FAI
Flex
E GRND
SYS AC
section 1.2, #9
Main Output
section 1.2 #17
12/24 V Selection
section 1.2 #20
FAI Controlled Output
section 1.2 #16
Battery Connection
section 1.2 #13
FlexConnect
Accessory Power
section 1.2 #11
Models ending in "/E"
are factory preset for 230VAC
with JP1 jumper already cut
Power Supply Quick Start
Figure 2

Related product manuals