EasyManua.ls Logo

Linde K10 - Abmessungen; Dimensions; Dimensioni; Medidas

Linde K10
116 pages
Print Icon
To Next Page IconTo Next Page
To Next Page IconTo Next Page
To Previous Page IconTo Previous Page
To Previous Page IconTo Previous Page
Loading...
18
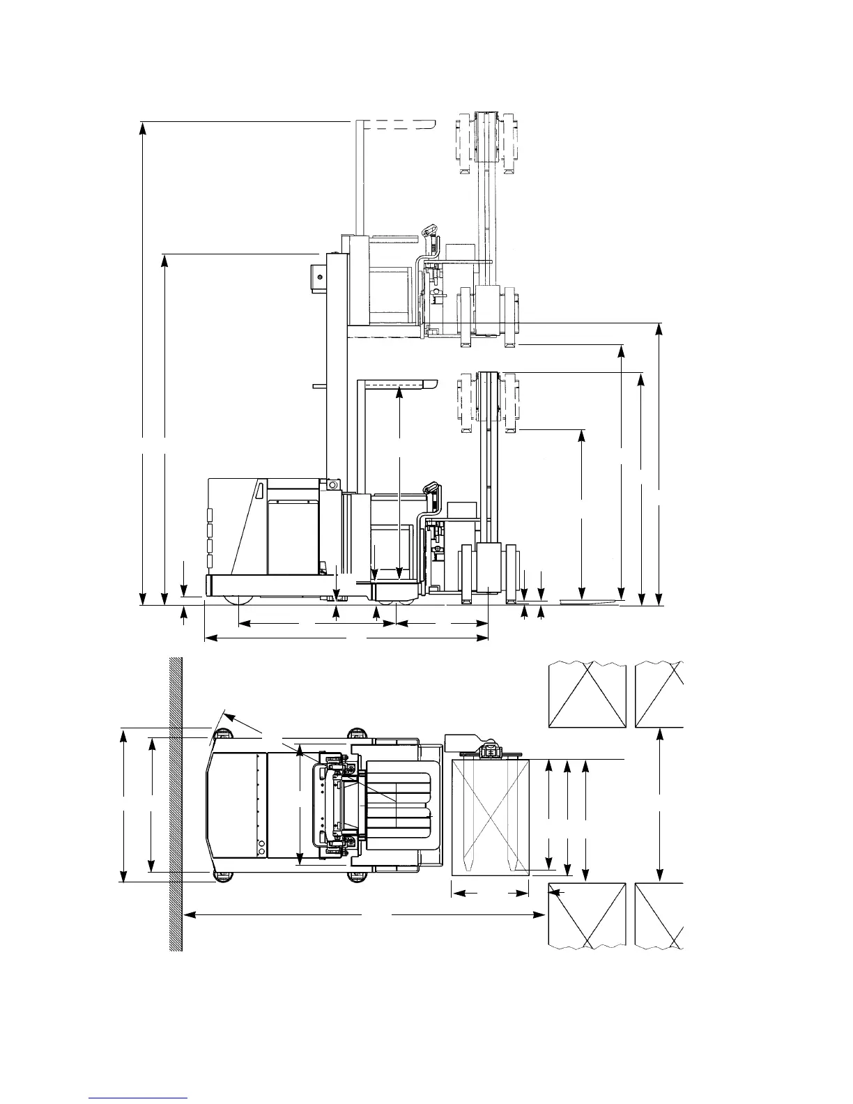
K10, K13
Abmessungen Dimensions
MedidasDimensioniDimensions
b1/b2
b12
Au
l1
l8
S
2450
2040
y
Ast
b7
l6l
h13
h9
h
4
h
1
m2
m1
h7
b6
h3
h12
Wa
b11

Table of Contents

Related product manuals