EasyManua.ls Logo

Marantz SR8300 - Connecting the Audio Components

Marantz SR8300
57 pages
Print Icon
To Next Page IconTo Next Page
To Next Page IconTo Next Page
To Previous Page IconTo Previous Page
To Previous Page IconTo Previous Page
Loading...
25
ENGLISH
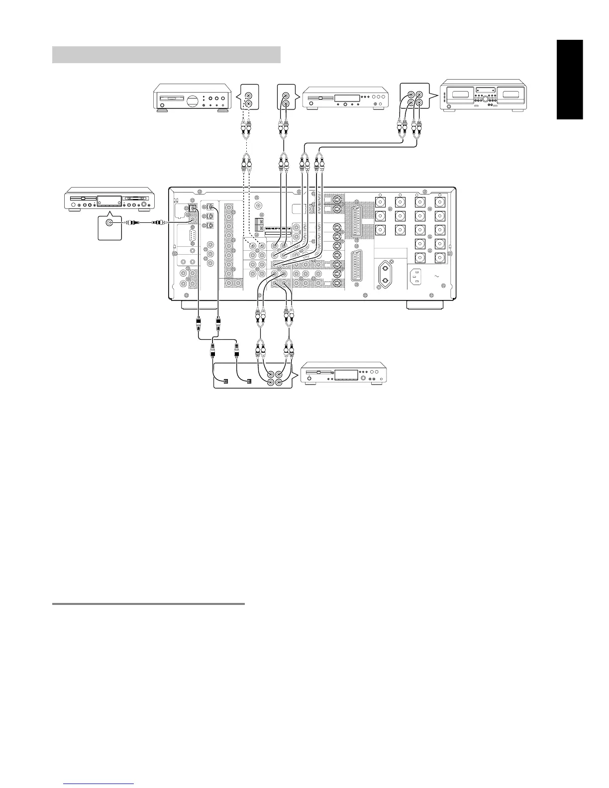
CONNECTING THE AUDIO COMPONENTS
The output audio signal from the TAPE OUT jack and the CD-R/MD
OUT jack is the sound source currently selected.
Caution:
Do not connect this unit and other components to mains power
until all connections between components have been
completed.
Notes:
Insert all plugs and connectors securely. Incomplete
connections may make noise.
Be sure to connect the left and right channels properly.
Red connectors are for the R (right) channel, and white
connectors are for the L (left) channel.
Be sure to connect input and output properly.
Refer to the instructions for each component that is connected
with this unit.
Do not bind audio/video connection cables with power cords
and speaker cables will result in generating hum or other noise.
CONNECTING DIGITAL AUDIO COMPONENTS
There are 6 digital inputs, 3 coaxial jacks and 3 optical jacks, on the
rear panel. You can use these jacks to input PCM, Dolby Digital and
DTS bitstream signals from a CD, DVD, or other digital source
components.
There are one digital output with coaxial jack and one with optical
jack on the rear panel. These jacks can be connected to CD
recorder, MD deck.
Setup the digital audio format of DVD player, or other digital source
component. Refer to the instructions for each component to be
connected to digital input jacks.
Use fiber optical cables (optical) for DIG-1, 2, 3 input jacks. Use 75
ohms coaxial cables (for digital audio or video) for DIG-4, 5, 6 input
jacks.
You can designate the input for each digital input/output jacks
according to your component. See page 32.
Notes:
There is no Dolby Digital RF input jack. Please use an external
RF demodulator Dolby Digital decoder when connecting the
Dolby Digital RF output jack of the video disc player to the
digital input jack.
The digital signal jacks on this unit conform to the EIA
standard. If you use a cable that does not conform to this
standard, this unit may not function properly.
Each type of audio jack works independently. Signals input
through the digital and analog jacks are output through the
corresponding digital and analog jacks, respectively.
RC
MULTI
OUT
EXT. IR
OPT
COAX
DIGITAL-OUT
AC IN
OUTIN
SBR
DVD-R
VCR2/
SBL
1
ROOM
MULTI
ROOM
MULTI
RL
SW
LEFT
DC OUT 2
OUT
MULTI VIDEO
ANTENNA
BACK
SURR.
CENTER
C
SR
SL
R
L
OUT
MULTI
RS232C
DC OUT 1
RIGHT
LEFT
CENTER
BACK
SURR.
RIGHT
LEFT
FRONT
LEFT
+
SURR.
FRONT
SURR.
RIGHT
DIGITAL-IN
6
5
4
3
2
FRONT
SURR.
7.1CH-IN
R
AM
GND
OUT
OUT
S-VIDEOVIDEO
VCR1
AUDIO
IN
MONI.
1
L
/MD
CD-R
IN
OUT
CD
IN
DVD
L
TAPE
OUT
PRE OUT
IN
SUB.W
R
TV
MONI.
2
LR
DSS
+
RC-5
GND
MODEL NO.SR8300
100W
UNSWITCHED
AC OUTLETS
230V 50HZ
DVD IN
SCART/
OUT
MONITOR
6-8 OHMS
SPEAKER SYSTEMS
DIGITAL
INPUT
OUT IN
L
R
L
R
DIGITAL
OUTPUT
DIGITAL
INPUT
OUT IN
L
R
L
R
OUT
L
R
OUT
L
R
L R
L R L R
R L
R L R L
L R
R L
R L
R L
R L
L R
CD RECORDER
MD PLAYER
SACD PLAYER
CD PLAYER
TAPE DECK

Table of Contents

Other manuals for Marantz SR8300

Related product manuals