EasyManua.ls Logo

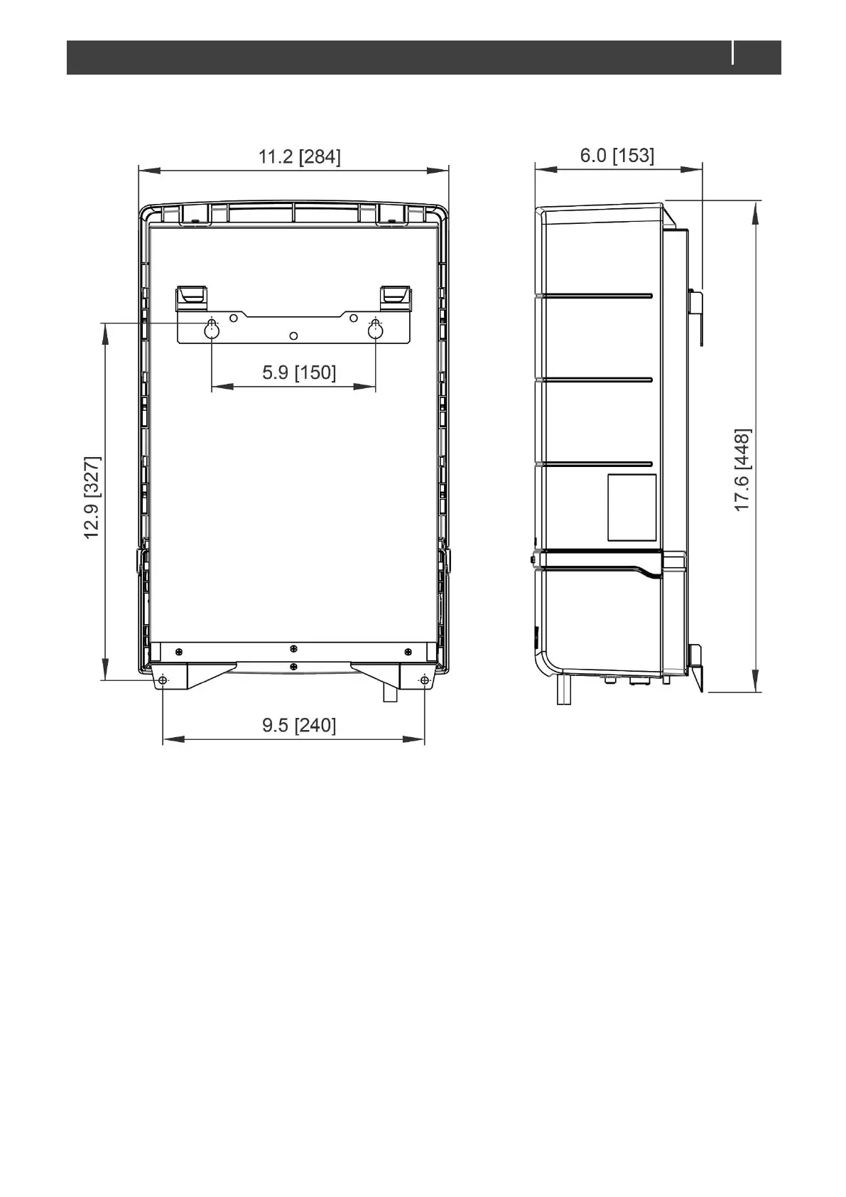
Mastervolt CombiMaster 12V/2000W 100A - 8.5 Unit Dimensions

Mastervolt CombiMaster 12V/2000W 100A
36 pages
Print Icon
To Next Page IconTo Next Page
To Next Page IconTo Next Page
To Previous Page IconTo Previous Page
To Previous Page IconTo Previous Page
Loading...
35
8.5 Dimensions
Figure 8. Dimensions in inches [mm]

Related product manuals