EasyManua.ls Logo

MAXA i-HP 0270 - Hydraulic Diagram Type; Control Logics; Handbook for Configurations of Installation

MAXA i-HP 0270
40 pages
Print Icon
To Next Page IconTo Next Page
To Next Page IconTo Next Page
To Previous Page IconTo Previous Page
To Previous Page IconTo Previous Page
Loading...
i-HP Industrial inverter air/water heat pumps with axial fans
36
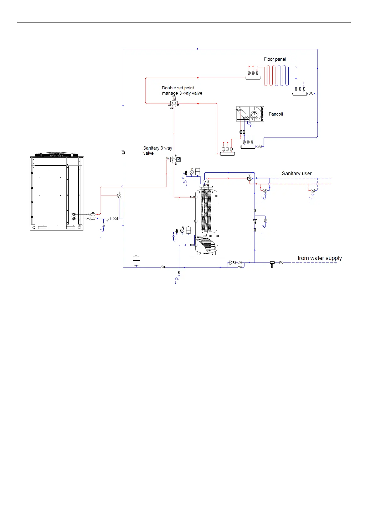
25 HYDRAULIC DIAGRAM TYPE
26 CONTROL LOGICS
For the control logics see the control manual supplied with the unit.
27 HANDBOOK FOR CONFIGURATIONS OF INSTALLATION
If you need more information about the possible configurations, there is a handbook, which is a technical book containing a series
of recommended drawings of plants that have been highlighted regarding the installation configuration of our high efficiency heat
pumps. The "Handbook" aims also the task of showing the symbiotic potential with some of our items in the catalogue.
You can contact our office for asking the handbook.

Table of Contents

Related product manuals