EasyManua.ls Logo

maximal FD80T - Oil Circuit of Hydraulic System

maximal FD80T
115 pages
Print Icon
To Next Page IconTo Next Page
To Next Page IconTo Next Page
To Previous Page IconTo Previous Page
To Previous Page IconTo Previous Page
Loading...
5-10t Internal Combustion Counterbalance Forklift Truck Operation & Maintenance Manual
-
102
-
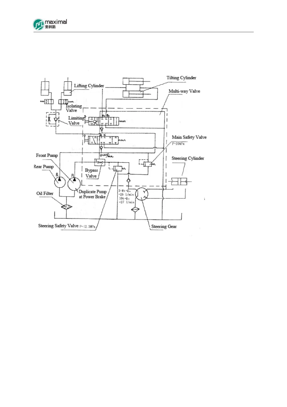
7.9 Oil Circuit of Hydraulic System (Main Oil Circuit):
Refer to Fig 7-12 for principle of hydraulic system.
Refer to Fig 7-13 for oil circuit diagram of hydraulic system for 5-10t forklift truck.
Fig 7-12 Schematic Drawing of Hydraulic System

Table of Contents

Related product manuals