EasyManua.ls Logo

McFarlane RD-4125 - Page 65

Default Icon
104 pages
Print Icon
To Next Page IconTo Next Page
To Next Page IconTo Next Page
To Previous Page IconTo Previous Page
To Previous Page IconTo Previous Page
Loading...
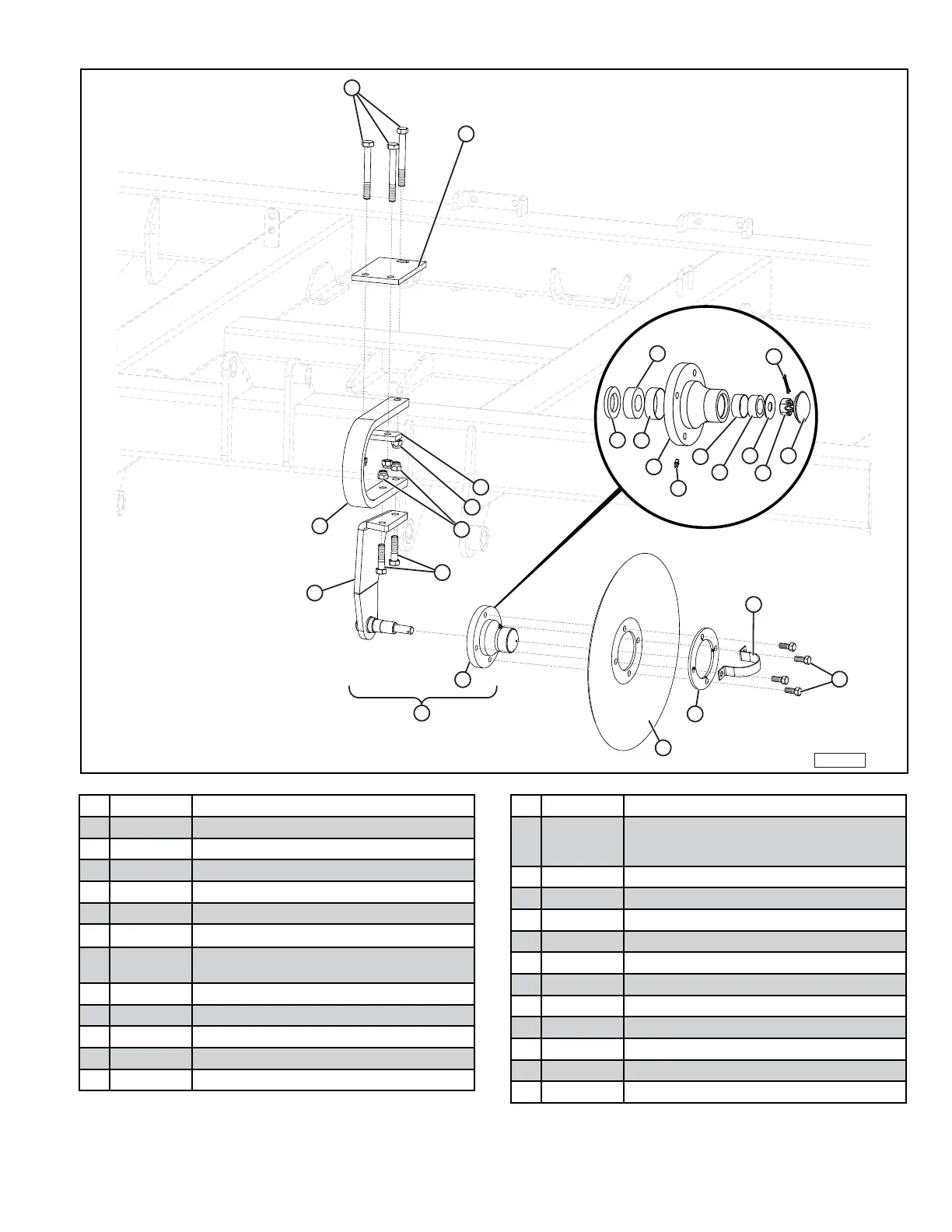
800-627-8569 65 Reel Disk from McFarlane Mfg.
Center Covering Disk For RD-4100 Series
14
15
16
17
18
19
20
21
22
23
24
1
2
5
7
8
9
10
11
12
6
3
4
4
13
MFM-00094
Item Part Number Description
1 BH-6355 5/8-11 X 5-1/2 GRADE 5 HEX BOLT
2 RD-4464 SPRING CLAMP PLATE
3 RD-4432 SPRING CLAMP PLATE
4 NLT-6311 5/8-11 TOP LOCK NUT
5 QT-1027 CENTER DISK SPRING
6 BH-6325 5/8-11 X 2-1/2 GRADE 5 HEX BOLT
7
RD-4902
RD-4901
LEVELER DISK MOUNT ASSY RT
LEVELER DISK MOUNT ASSY LT
8 RD-5092 HUB RETAINER
9 HD-1170 4-BOLT HUB ASSEMBLY
10 QT-1025 BLADE, CONCAVE, 4-BOLT, 20”
11 QT-1026 CENTER DISK HUB PLATE
12 BHF-5013 WHEEL STUD, 1-1/4 GD 8
Item Part Number Description
13 RD-5095
RD-5096
LEVELER DISK ASSY W/HUB LT
LEVELER DISK ASSY W/HUB RT
(includes items 7 and 9)
14 HD-1160 GREASE SEAL
15 HD-1162 INNER BEARING
16 HD-1171 INNER RACE
17 HD-1161 HUB WITH RACES, 4 HOLE
18 GZ-2528 ZERK, GREASE
19 HD-1172 OUTER RACE
20 HD-1163 OUTER BEARING
21 HD-1164 SPINDLE FLAT WASHER
22 HD-1165 SPINDLE CASTLE NUT
23 HD-1167 DUST CAP
24 CP-5312 PIN, COTTER .150 x 1-1/4
* Items 14 - 24 are part of RD-5092 Hub Retainer Assembly, Item 9.

Table of Contents

Related product manuals