EasyManua.ls Logo

Miele DGC 6705 - Page 151

Miele DGC 6705
164 pages
Print Icon
To Next Page IconTo Next Page
To Next Page IconTo Next Page
To Previous Page IconTo Previous Page
To Previous Page IconTo Previous Page
Loading...
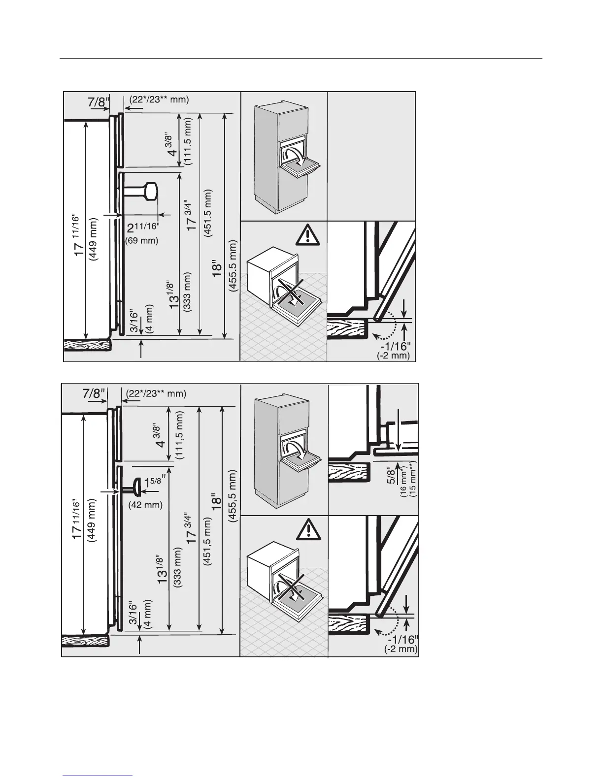
Cut-outs for venting the appliance and routing of the water hoses
To route the water hoses and to ensure that the Combi Steam Oven has adequate
ventilation, the following cut-outs measuring 19 11/16" x 1 9/16" (500 x 40 mm)
must be made:
a in the top of the cabinet (ventilation)
b in the center shelf above the installation niche (ventilation)
c in the appliance support base (water hoses)
d in the bottom of the cabinet (water hoses)
The cabinet housing must not have a back panel fitted behind the installation
niche.
Appliance and installation dimensions
151

Table of Contents

Other manuals for Miele DGC 6705

Related product manuals