EasyManua.ls Logo

Mitsubishi PLH-4AAK - Wiring Diagram; Electrical Wiring and Component Legend; Malfunction Diagnosis and Emergency Operation

Mitsubishi PLH-4AAK
86 pages
Print Icon
To Next Page IconTo Next Page
To Next Page IconTo Next Page
To Previous Page IconTo Previous Page
To Previous Page IconTo Previous Page
Loading...
31
6
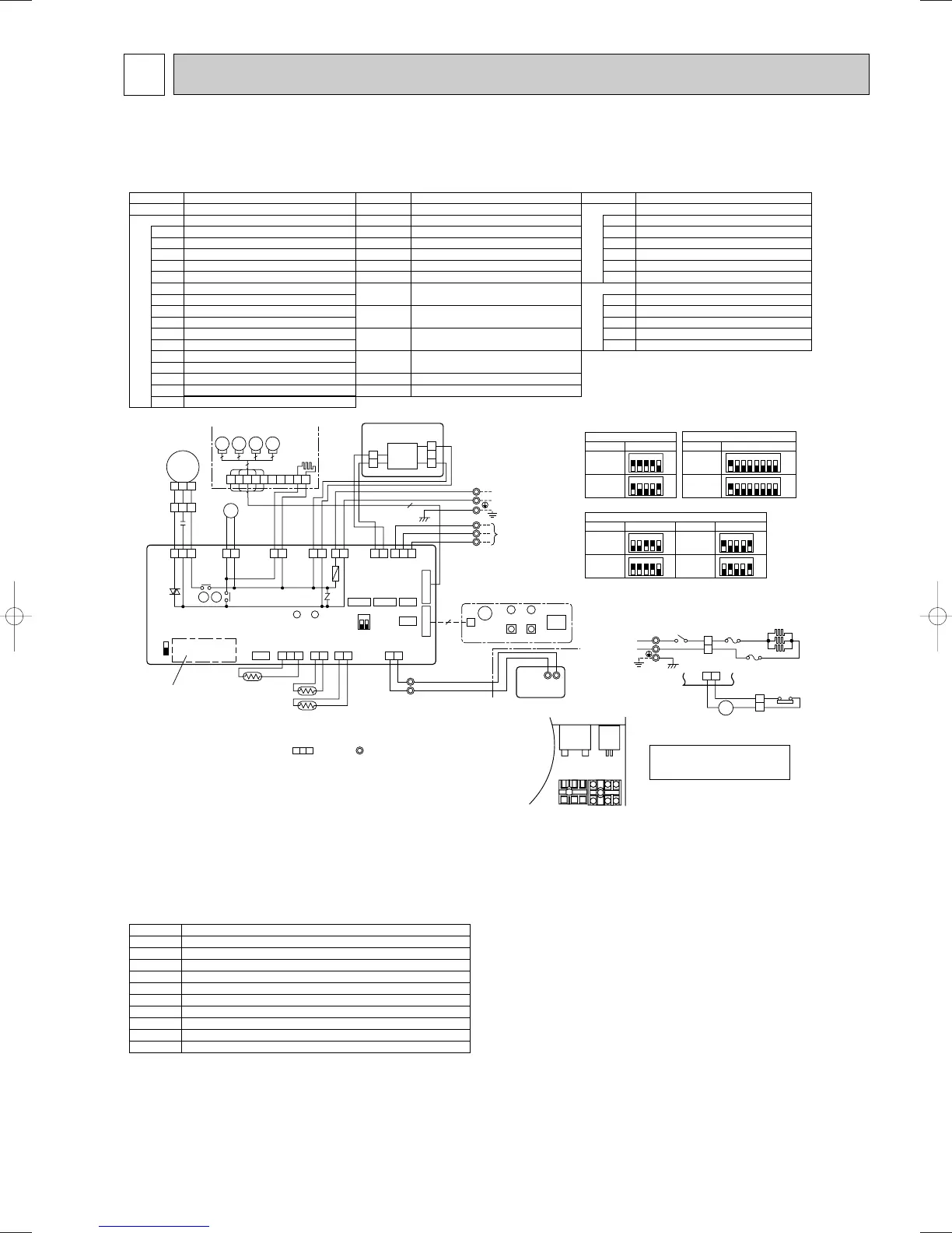
WIRING DIAGRAM
PLH-3AAK PLH-4AAK PLH-5AAK PLH-6AAK
PLH-3AAKH PLH-4AAKH PLH-5AAKH PLH-6AAKH
321
321
531
MF
FAN
(WHT)
RED
WHT
BLK
BLK
X1
X4
X1X4
C
BCR
31
DP
D.U.M
CNP
(BLU)
YLW
YLW
31 31 3 31
YLW
YLW
D.HEATER
CNC(RED)
RED
WHT
WHT
POWER
CNDK
(RED)
POWER
CND
(ORN)
21 21
POWER
CN2D
(WHT)
21
OUTDOOR
CN30
(BLK)
CN41CN51 CN2L
CN32
9
WIRELESS
CN90
(WHT)
BZ
5
VANE
CN6V
(GRN)
CN2S
(WHT)
CNSK
(RED)
W.B
LED2
CNB
LED1
SW1 SW2
RU
21
2
21
1
REMOCON
CN22
(BLU)
TB5
TRANSMISSION WIRES
DC12V
TB6
R.B
BLU
BLU
321 21 21
D.SENSOR
CN31
(WHT)
INTAKE
CN20
(RED)
HEATER
CN24
(YLW)
LIQUID
CN21
(WHT)
DS
TH2
TH1
LED2 LED1
SW6
ON
OFF
SWE
Refer to tables
1. 2 and 3.
SW2SW1 SW5
9 5
10
76321 84
5
MV
5
MV
5
5
MV
5
MV
GRILLE
H2
TB2
TB2
I.B
HEATER CN24
(YLW)
[PLH-AAKH models only]
POWER SUPPLY
~(1PHASE)
220-240V 50Hz
220V 60Hz
POWER SUPPLY
~(1PHASE)
220-240V 50Hz
220V 60Hz
88H
FS1
26H
FS2
H1
L
RED
RED
BLU
RED RED
BLU
GRN/YLW
GRN/YLW
WHT
WHT
WHTGRY
N
TO OUTDOOR UNIT
L
N
DC
13.1V
1
2
2
3
2
1
2
6
5
1
1
P.B
ZNR
FUSE
I.B
YLW
ORN
BRN
88H
YLW
RED
BLU
YLW
1 2 3 4 5
ON
OFF
MODELS
Table 1
SW1
Manufacture/Service
PLH-AAK
1 2 3 4 5
ON
OFF
MODELS
Table 2
SW2
Manufacture/Service
PL
H
-3AA
K
PL
H
-3AA
K
H
PL
H
-4AA
K
PL
H
-4AA
K
H
PL
H
-5AA
K
PL
H
-5AA
K
H
PL
H
-6AA
K
PL
H
-6AA
K
H
1 2 3 4 5
ON
OFF
1 2 3 4 5
ON
OFF
MODELS
Manufacture/Service
1 2 3 4 5
ON
OFF
1 2 3 4 5
ON
OFF
1 2
ON
OFF
PLH-AAKH
12345678
12345678
ON
OFF
MODELS
Table 3
SW5
Manufacture/Service
PLH-AAK
ON
OFF
PLH-AAKH
NOTES:
1.Symbols used in wiring diagram above are, : Connector, : Terminal (block).
2.Indoor and outdoor connecting wires are made with polarities, make wiring
matching terminal numbers (1, 2, 3).
3.Since the outdoor side electric wiring may change be sure to check the outdoor
unit electric wiring for servicing.
Please set the voltage using the
remote controller.
For the setting method. please refer to
the indoor unit Installation Manual.
2
1
3
TB4
PLH-AAKH
(with heater)
Position of 88H.
(for Control box)
88H
C
TB2
TB4
INDOOR POWER BOARD
[LEGEND]
P.B
INDOOR CONTROLLER BOARD
I.B
FUSE(T6.3AL250V)
FUSE
CN2L
VARISTOR
ZNR
CONNECTOR(LOSSNAY)
CN32
FAN CONTROL ELEMENT
BCR
CONNECTOR(REMOTE SWITCH)
CN41
CONNECTOR(HA TERMINAL-A)
CN51
CONNECTOR(CENTRALLY CONTROL)
SW1
SWITCH(MODEL SELECTION)WSee table 1
SWITCH(CAPACITY CORD)WSee table 2
SW2
SW5
SWITCH(SYSTEM SELECTION)WSee table 3
SW6
SWITCH(EMERGENCY OPERATION)
SWE
CONNECTOR(EMERGENCY OPERATION)
X1
RELAY(DRAIN PUMP)
X4
RELAY(FAN MOTOR)
LED1
POWER SUPPLY(I.B)
LED2
POWER SUPPLY(R.B)
SYMBOL NAME SYMBOL NAME SYMBOL NAME
C
CAPACITOR(FAN MOTOR)
MF
FAN MOTOR
MV
VANE MOTOR
DP
DRAIN-UP MACHINE
DS
DRAIN SENSOR
H2
DEW PREVENTION HEATER
TB4
TERMINAL BLOCK (INDOOR/
OUTDOOR CONNECTING LINE)
TB2
TERMINAL BLOCK (POWER SUPPLY)
TB5, TB6
TERMINAL BLOCK(REMOTE
CONTROLLER TRANSMISSION LINE)
TH1
ROOM TEMP.THERMISTOR
(0:/15k",25:/5.4k" DETECT)
TH2
PIPE TEMP.THERMISTOR/LIQUID
(0:/15k",25:/5.4k" DETECT)
R.B
WIRED REMOTE CONTROLLER BOARD
W.B
HEATER
WIRELESS REMOTE CONTROLLER BOARD
RU
RECEIVING UNIT
FS1
THERMAL FUSE(72:, 16A)
FS2
THERMAL FUSE(104:, 16A)
H1
HEATER
26H
HEATER THERMAL SWITCH
88H
HEATER CONTACTOR
BZ
BUZZER
LED1
LED(RUN INDICATOR)
LED2
LED(HOT ADJUST)
SW1
SWITCH(HEATING ON/OFF)
SW2
SWITCH(COOLING ON/OFF)
[Self-diagnosis]
1.For details on how to operate self-diagnosis with the wireless remote control, refer to the
technical manuals etc.
2.For the wired remote control:When you quickly press twice the CHECK switch on the
remote control, the unit begins self-diagnosis.
and Check Codes generated in the past appear on the display.
For Check Codes and symptoms refer to the table below.
Check Code
P1
P2
P4
P5
Abnormality of room temperature thermistor (TH1).
Abnormality of pipe temperature thermistor/Liquid (TH2).
Abnormality of drain sensor (DS).
Malfunction of drain-up machine.
Symptom
P6
Freezing / overheating protection is working.
P8
E0-E5
Abnormality in outdoor unit. Refer to outdoor unit wiring diagram.
Abnormality of the signal transmission between remote controller and indoor unit.
----
FFFF
No trouble generated in the past.
No corresponding unit.
Fb
Abnormality of indoor controller board.
[Emergency operation procedure]
1.When the wired remote control or the indoor unit microcomputer has failed,but all other compornents work
if you set the switch (SWE, SW6) on the indoor control board, the indoor unit will begin properly
Emergency Operation.
WNote on the wireless remote control: when the remote control does not function, it is possible to
activate Emergency Operation by using the indoor unit emergency operation switch (SW1,SW2 of the
wireless signal receiver board).
However,if the indoor unit microcomputer has failed,it is nesessary to proceed with points 2 and
3 below as in the case of the wired remote controller.
2.When you activate emergency operation of the cooling or heating, you have to set the switch (SWE) and
switch (SW6) on the indoor controller.
SWE : ON • Indoor fan is running at high speed. • Drain-up machine is working.
SW6-1 : ON • Emergency operation of cooling mode.
SW6-1,2 : ON • Emergency operation of heating mode.
3.Before you activate emergency operation, check the following points:
(1) Emergency operation cannot be activated when:
• the outdoor unit malfunctions. • the indoor fan malfunctions.
• when it has detected the malfunction of drain-up machine during self-diagnosing.
(2) Emergency operation becomes continuous only by switching the power source on/off. ON/OFF on the
remote control or temperature control etc,dose not function.
(3) Avoid operating for a long time when the outdoor unit begins defrosting while emergency operation of
the heating is activated, because it will start to blow cold air.
(4) Emergency cooling should be limited to 10 hours maximum (The indoor unit heat exchanger may freeze).
(5) After emergency operation has been deactivated, set the switches etc.to their original positions.
(6) Movement of the vanes does not work in emergency operation, therefore you have to slowly set them
manually to the appropriate position.
OC360--2.qxp 06.2.24 1:55 PM Page 31

Table of Contents

Related product manuals