EasyManua.ls Logo

Mitsubishi PLH-4AAK - Rotation Setting ( Function Setting Mode No.20 ); Selecting Functions Using the Wired Remote Controller

Mitsubishi PLH-4AAK
86 pages
Print Icon
To Next Page IconTo Next Page
To Next Page IconTo Next Page
To Previous Page IconTo Previous Page
To Previous Page IconTo Previous Page
Loading...
51
Rotation setting
(
Function setting mode No.20
)
Function setting
Features Indoor controller board
Mode No.
This system can correspond only by the pattern of two refrigerant group by 1 : 1
(indoor and outdoor unit combination) systems.
Setting No.
SW5-3 setting SW5-4 setting
19 01
(
24hours
cycle
)
02
ON
OFF : Main
ON : Sub
(
168hours
cycle
)
03
(
Back up
function
)
When abnormality occurs while
operating
,
it changes as a back up unit
,
and operating continues.
Each system operates alternately for
24hours.
Each system operates alternately for
168hours.
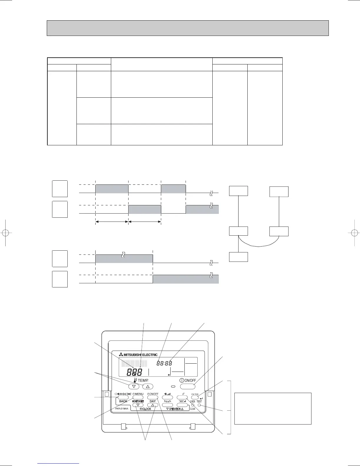
Example of unit's operation
(Setting No. = 01 or 02)
Main Unit is abnormal
Operation starts MainSub SubMain
(Setting No. = 02
• • •
168hours cycle)
Outdoor
unit
(Setting No. = 03)
Main Unit is abnormal
Indoor
Operation starts MainSub
unit
Remote
Controller
MainSub
24h 24h
Sub
indoor
unit
ON
OFF
OFF
Main
indoor
unit
ON
OFF
Sub
indoor
unit
Main
indoor
unit
ON
ON
OFF
Main
Sub
9-1-1. Selecting functions using the wired remote controller
First, try to familiarize yourself with the flow of the function selection procedure. In this section, an example of setting the room
temperature detection position is given.
For actual operations, refer to steps 1 to 0 .
Setting number
Address Unit number
Mode number
F
E
G
C
D
J
B
A
I
Modes 01 to 13 can be activated
by pressing buttons
A
and
B
simultaneously, and modes 15 to
28 by pressing buttons
B
and
J
.
OC360--2.qxp 06.2.24 1:55 PM Page 51

Table of Contents

Related product manuals