EasyManua.ls Logo

Mitsubishi PLH-4AAK - Connections on the Indoor Unit Side; Locally Procured Parts; Obtaining Remote Display; Timer Operation

Mitsubishi PLH-4AAK
86 pages
Print Icon
To Next Page IconTo Next Page
To Next Page IconTo Next Page
To Previous Page IconTo Previous Page
To Previous Page IconTo Previous Page
Loading...
73
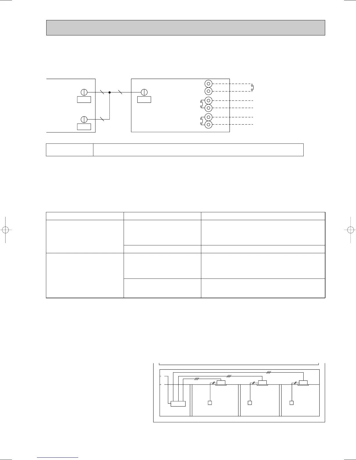
11-8. OBTAINING REMOTE DISPLAY
Use the A control operating display kit (PAC-SF40RM-E) to provide operation/error non-voltage contact output and on/off input
function.
(1). Wiring method
CN90 CN1
CN41
Wireless
3
TB3
External input
TB2
Error
TB1
Operation
2
A control indoor control circuit board A control operating display kit
5
External input
Error output
(No voltage momentary "a" contact)
Operating output
(No voltage momentary "a" contact)
No voltage
(Momentary "a" contact)
HA
..
Caution
TB3 is a dedicated terminal for contact point input. Never input voltage. It will damage
the indoor control circuit board.
<Connections on the indoor unit side>
11
When using external output function
Insert the 9-prong connector (3-core) of the attached cable to CN90 on the indoor control circuit board.
22
When using the external input function
Insert the 4-prong connector (2-core) of the attached cable to CN41 on the indoor control circuit board.
W The connector is direction-sensitive. Use care not to make an error when inserting.
Never force the connectors. This will result in damage.
(2). Locally procured parts
Item Name Model and specifications
External output function External output signal wire Use sheathed vinyl coated cord or cable.
Wire type: CV, CVS or equivalent.
Wire size: Stranded wire 0.5mm
2
to 1.25mm
2
Single straged: {0.65mm to 1.25mm
Display lamp, etc. No voltage “a” contact AC200V (DC30V), 1A or less
External input function External input signal wire Use sheathed vinyl coated cord or cable.
Wire type: CV, CVS or equivalent.
Wire size: Stranded wire 0.5mm
2
to 1.25mm
2
Single straged: {0.65mm to 1.2mm
Switch No voltage “a” contact
(Start and stop operation is switched by inputting a
pulse of 200ms or more)
11-9. TIMER OPERATION
Timer operation can be performed by setting the wired or wireless remote controller timer. Start and stop times can be set in
10-minute increments within a 24-hour period.
When used in combination with the central control remote controller of the M-NET control system for the outdoor unit, one
program timer can be used for individual timer settings for each group of the central control system. (Each timer setting can
be stored in data memory so timer settings for up to 50 groups can be set individually.)
W Please refer to the MELANS catalog or technical information for details about the central control remote controller.
1.Operating with on-site timer
(1). Summary of system
If the “Remote ON/OFF adapter” (PAC-
SE55RA-E) (sold separately) is used, the
on-site timer can be operated to turn each
unit on and off.
Power supply for controller
Timer control
panel (on-site)
Remote controller
Indoor unit
Remote controller
Indoor unit
Remote controller
Indoor unit
OC360--3.qxp 06.2.24 1:52 PM Page 73

Table of Contents

Related product manuals