EasyManua.ls Logo

Mitsubishi PLH-4AAK - System Control; Variety of System Control Functions

Mitsubishi PLH-4AAK
86 pages
Print Icon
To Next Page IconTo Next Page
To Next Page IconTo Next Page
To Previous Page IconTo Previous Page
To Previous Page IconTo Previous Page
Loading...
62
SYSTEM CONTROL11
11-1. VARIETY OF SYSTEM CONTROL FUNCTIONS
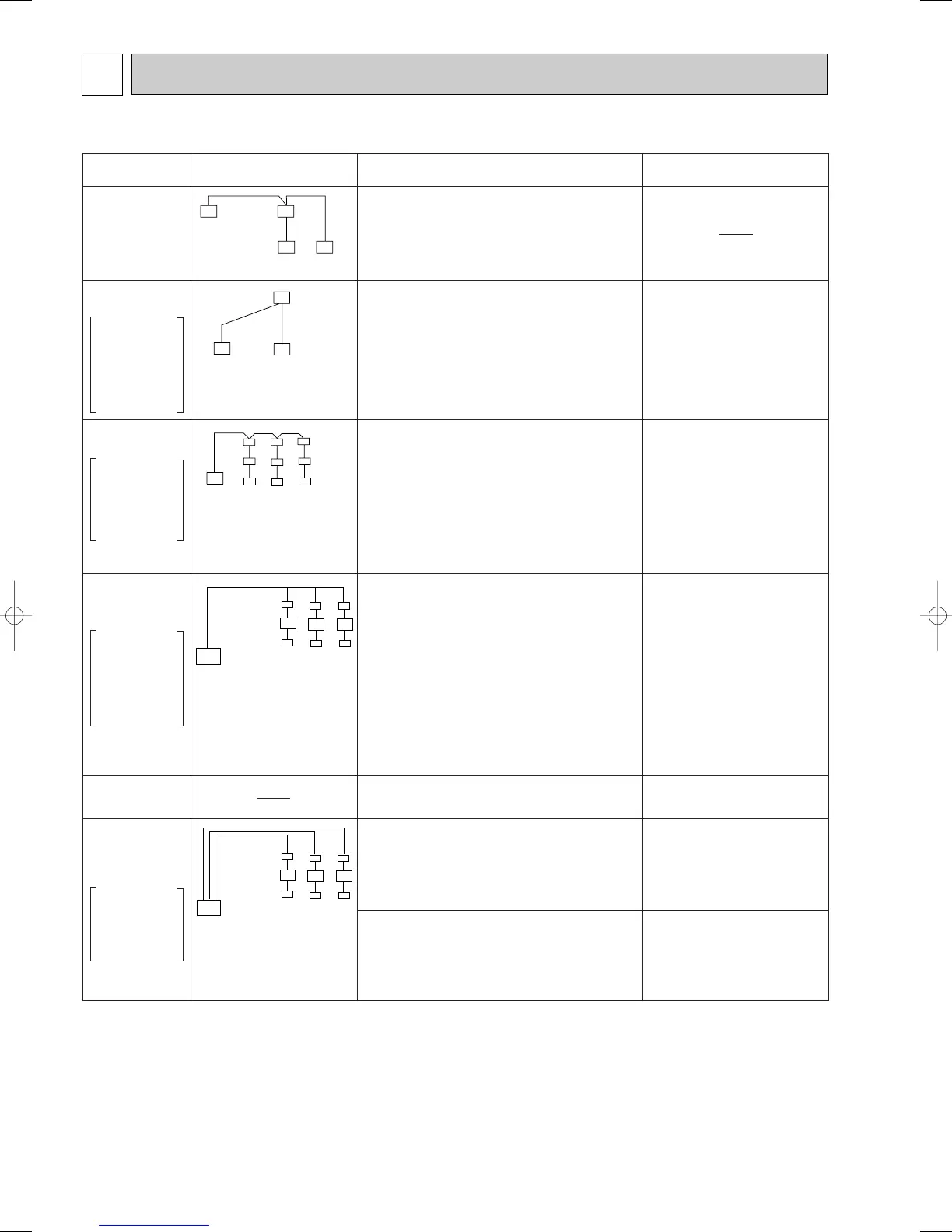
System Name System Diagram Features
Parts Required in Addition to Standard System
Components (Indoor/Outdoor Units, Remote Controller)
Indoor unit
Remote
Controller
Outdoor
unit
A.Remote control-
ler operation
(Standard)
B.Remote control-
ler operation
Use of two con-
trollers enables
operation of the air
conditioner both
from a distance
and nearby.
C.Group control
operation
Uses one remote
controller to con-
trol multiple air
conditioners with
the same settings
simultaneously.
D.
Remote/handheld
combined control
operation
Allows start/stop
of the air condi-
tioner from a dis-
tance, and prohib-
its/permits start/
stop from remote
controllers.
E.Operation by
external signal
F.
Control and remote
display by external
signal (extraction
of monitor signal)
Enables you to
display the op-
eration state and
control start/stop
from a distance.
There are two types of remote controllers: wired type
and wireless type.
Simultaneous twin indoor units are started or stopped
simultaneously.
Up to two remote controllers can be connected to
one group.
Simultaneous twin units are counted as each unit.
Operation control by the latest command (last en-
tered priority)
Wired and wireless remote controllers can be com-
bined as a pair.
One group can consist of up to 16 indoor units, and
they can be started sequentially by connecting the
remote controller to them and assigning an address
to each inter face.
Simultaneous twin units are counted as one unit.
All the units belonging to the same group are oper-
ated in the same mode, but thermostats can be
turned ON/OFF individually for each indoor unit.
Up to two remote controllers can be connected.
All the air conditioners can be turned ON/OFF collectively
from a distance.
Operation can be switched between the remote operat-
ing panel and handheld controller.
Operations (e.g., temperature adjustment, airflow, air-
flow direction) except for start/stop operations can be
performed even if the remote controller is being oper-
ated.
In the case of simultaneous twin, triple and quad units,
connect the controller to one indoor unit only. If con-
nected to two or more indoor units, an error (operation
stop) may occur.
Control by an external timer is possible by connecting it.
Use of optional "remote operation adapter" enables
remote control via relay. (Level signal)
Extraction of non-voltage contact output
Use of optional "remote operation adapter" and
"remote display panel" (installation required) pro-
vides non-voltage contact outputs of signals (opera-
tion, error) and operation/stop input function.
Extraction of DC12 V contact output
Use of optional "remote display adapter" and "re-
mote display panel" (installation required) provides
DC12 V contact outputs of signals (operation, error)
and operation/stop input function.
Indoor
unit
Remote
Controller
* One of the wired remote con-
trollers must be set as a sub
remote controller.
Indoor
unit
Outdoor
unit
Inter face
Remote
Controller
Indoor unit
Remote Controller
Relay box
Remote operating panel
Remote
display kit
Remote display (operation, error)
Indoor unit
Remote Controller
Wired remote controller (addi-
tional)
(PAR-21MAA)
For models PK(H)-GAKL(H)/
FAKL(H), use remote
controller (PAR-21MAAT-E).
*For models equipped with a ter-
minal block.
Inter face MAC-397IF-E
Remote ON/OFF adapter
(PAC-SE55RA-E)
Relay box
(Installation required)
Remote operating panel
(Installation required)
Remote ON/OFF adapter
(PAC–SE55RA-E)
A-control operation display kit
(PAC-SF40RM-E)
Remote display panel
(Installation required)
Remote display adapter
(PAC-SA88HA)
Remote display panel
(Installation required)
OC360--3.qxp 06.2.24 1:52 PM Page 62

Table of Contents

Related product manuals