EasyManua.ls Logo

Motorola IMPRES WPLN4189 - Последовательные Схемы Отображаемых Сообщений Для Аккумуляторов IMPRES

Motorola IMPRES WPLN4189
252 pages
To Next Page IconTo Next Page
To Next Page IconTo Next Page
To Previous Page IconTo Previous Page
To Previous Page IconTo Previous Page
Loading...
–ÛÒÒÍËÈ
21
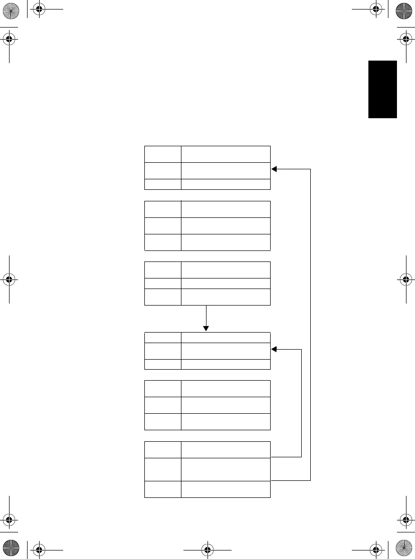
Последовательные схемы отображаемых сообщений для
аккумуляторов IMPRES
Примечание. Эти схемы отражают последовательности сообщений,
приведенных в предыдущем разделе "Общая информация о дисплее" и
доступны только на английском языке.
Последовательность отображаемых сообщений для никель-
кадмиевых и никель-металл-гибридных аккумуляторов
Индикатор Отражает состояние заряда
аккумулятора
Строка 1 KIT# xxxxxxxx
(КОМПЛЕКТ№ xxxxxxxx)
Строка 2 SN: yyyyyyyyyyyy
Индикатор Отражает состояние заряда
аккумулятора
Строка 1 KIT# xxxxxxxx
(КОМПЛЕКТ№ xxxxxxxx)
Строка 2 yyyyy CHEMISTRY
(ТИП ЭЛЕКТРОЛИТА yyyyy)
Индикатор Отражает состояние заряда
аккумулятора
Строка 1 xxxx CYCLES (xxxx ЦИКЛОВ)
Строка 2 TO RECONDITION
(ДО ВОССТАНОВЛЕНИЯ)
Индикатор Постоянно горит КРАСНЫМ
Строка 1 RAPID CHARGE
(БЫСТРАЯ ЗАРЯДКА)
Строка 2
Индикатор Отражает состояние заряда
аккумулятора
Строка 1 xx% RATED CAP. (xx%
НОМИНАЛЬНОЙ ЕМКОСТИ)
Строка 2 yyyyy mAH zz.z V
(yyyyy мА, zz.z В)
Индикатор Отражает состояние заряда
аккумулятора
Строка 1 RAPID CHG ENDS
(ОКОНЧАНИЕ БЫСТРОЙ
ЗАРЯДКИ)
Строка 2 IN xx HRS, yy MIN
(ЧЕРЕЗ xx Ч, yy МИН)
«‡ÔÛÒÍ
(4,0 c)
(2,0 c)
(2,0 c)
(2,0 c)
(7,0 c)
(4,0 c)
‡Ê‰˚Â
73,0 c
‡Ê‰˚Â
13,0 c
5X
65,0 c
6866537D22.book Page 21 Wednesday, March 23, 2016 12:53 PM

Table of Contents

Related product manuals