EasyManua.ls Logo

Nastec ANDO VASCO - Page 29

Nastec ANDO VASCO
56 pages
Print Icon
To Next Page IconTo Next Page
To Next Page IconTo Next Page
To Previous Page IconTo Previous Page
To Previous Page IconTo Previous Page
Loading...
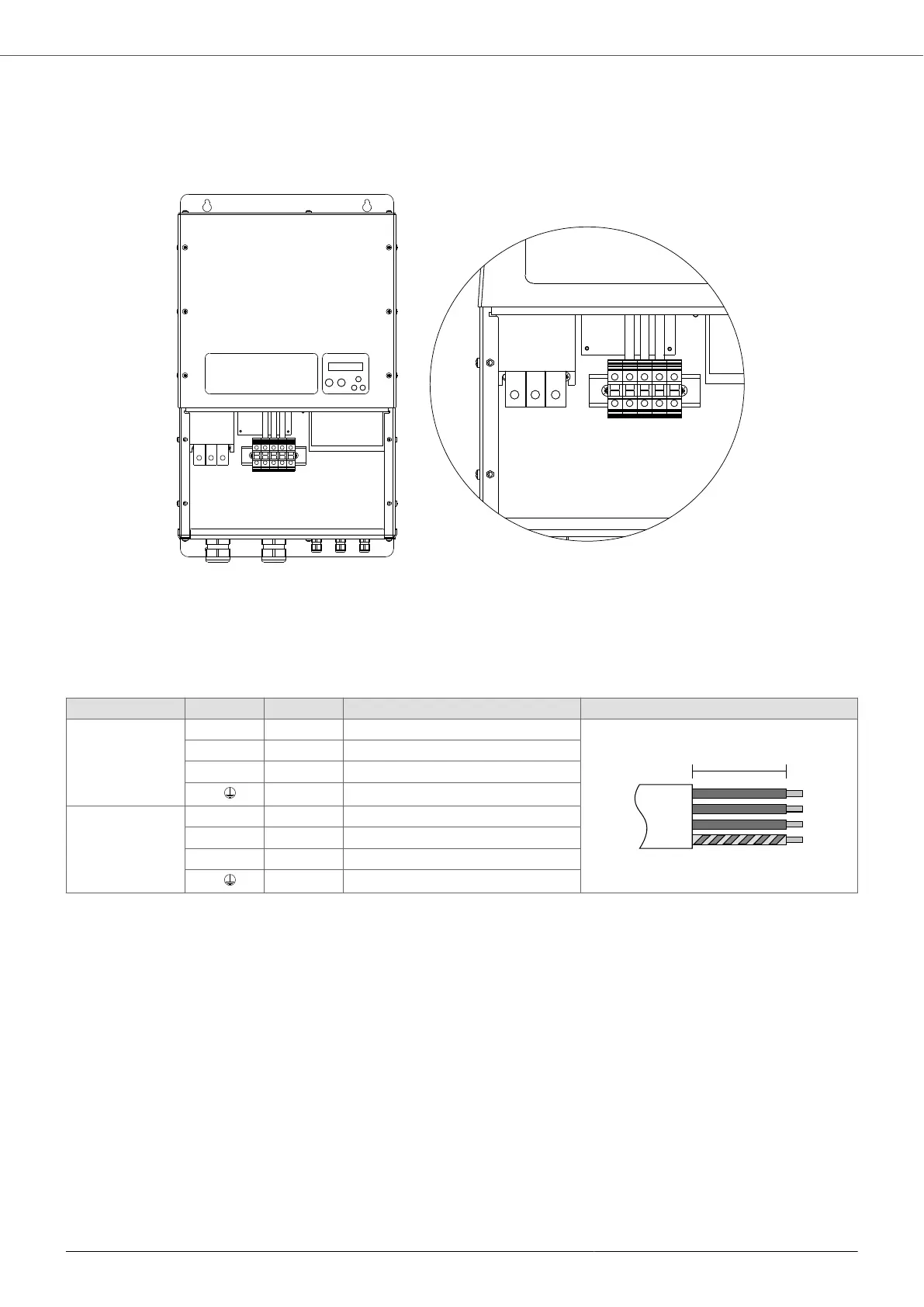
V338 , V348 , V365 , V375 , V385 , V318 , V438 , V448 , V465 , V475 , V485 , V4118
L1 L2 L3
LINE
MOTOR
P.E. U V W P.E.
L1 L2 L3
LINE MOTOR
P.E. U V W P.E.
A [mm] Pre-insulated cable lug Stripping diagram
Power Supply
LINE
L1 140 Tip
A
L2 140 Tip
L3 140 Tip
P.E.
140 Tip
Motor
MOTOR
U 140 Tip
V 140 Tip
W 140 Tip
P.E.
140 Tip
VASCO - VAriable Speed COntroller
29

Table of Contents

Related product manuals