EasyManua.ls Logo

Necta Colibri Espresso - Push-Button Board

Necta Colibri Espresso
47 pages
Print Icon
To Next Page IconTo Next Page
To Next Page IconTo Next Page
To Previous Page IconTo Previous Page
To Previous Page IconTo Previous Page
Loading...
25
© by NECTA VENDING SOLUTIONS SpA 09-2003 228 00
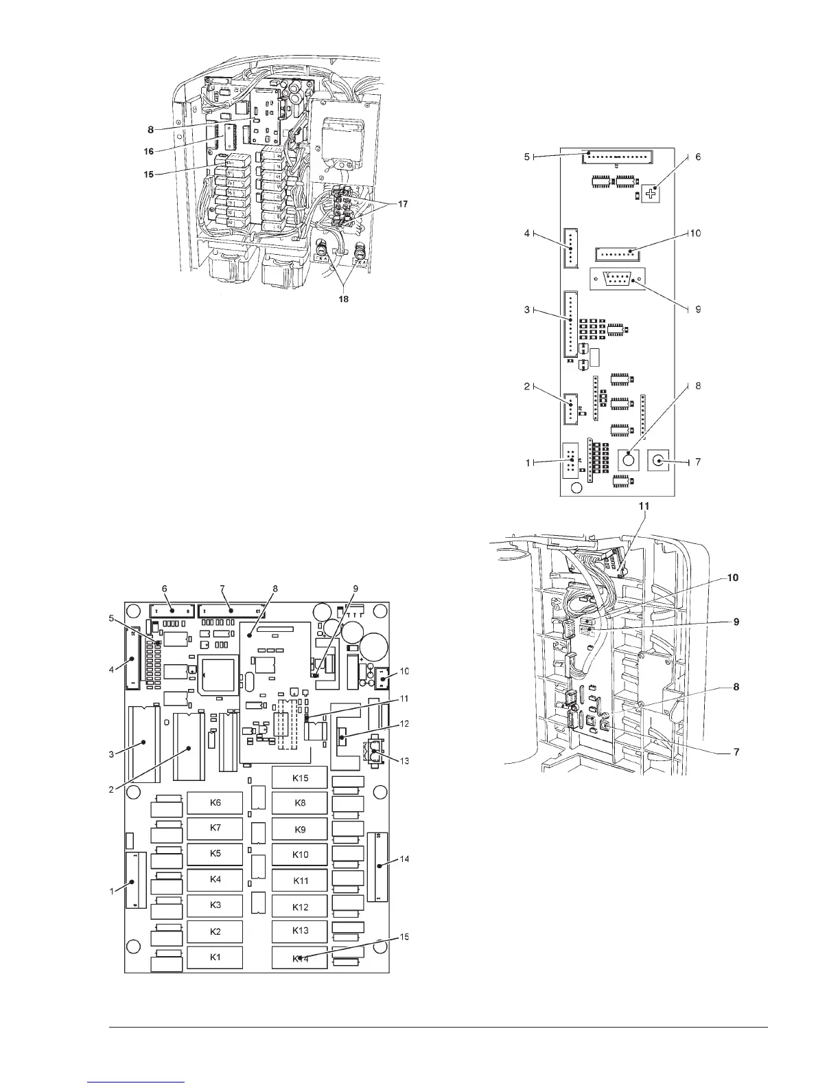
Fig. 18
1 - To the front validator
2 - Not used
3 - To the machine board
4 - Signals: free vend - jug facilities
5 - To the display card
6 - Display contrast adjustment trimmer
7 - Programming button
8 - Wash button
9 - RS232 port
10 - To the programmer
11 - Display card
Fig. 17
1 - 110 V~ power users
2 - RAM
3 - EPROM
4 - Input signal
5 - Green LED
6 - Not used
7 - To the push-button board
8 - Expansion board for payment systems (optional)
9 - Green LED
10 - Board power supply
11 - Red LED
12 - TRIAC for the boiler heating element
13 - To boiler heating element
14 - 110 V~ power users
15 - Relays
16 - Control board
17 - Transformer fuse
18 - Mains fuses
PUSH-BUTTON BOARD
This board controls the alphanumeric display, the selec-
tion buttons and the programming button (see Fig 18).
It supports the coin mechanism connectors as well as the
printer port.

Table of Contents

Related product manuals