EasyManua.ls Logo

Nederman E-PAK 150 DX - Figures; Figurer; Abbildungen; Ilustraciones

Nederman E-PAK 150 DX
548 pages
Print Icon
To Next Page IconTo Next Page
To Next Page IconTo Next Page
To Previous Page IconTo Previous Page
To Previous Page IconTo Previous Page
Loading...
E-PAK 150 DX/300 DX/500 DX
4
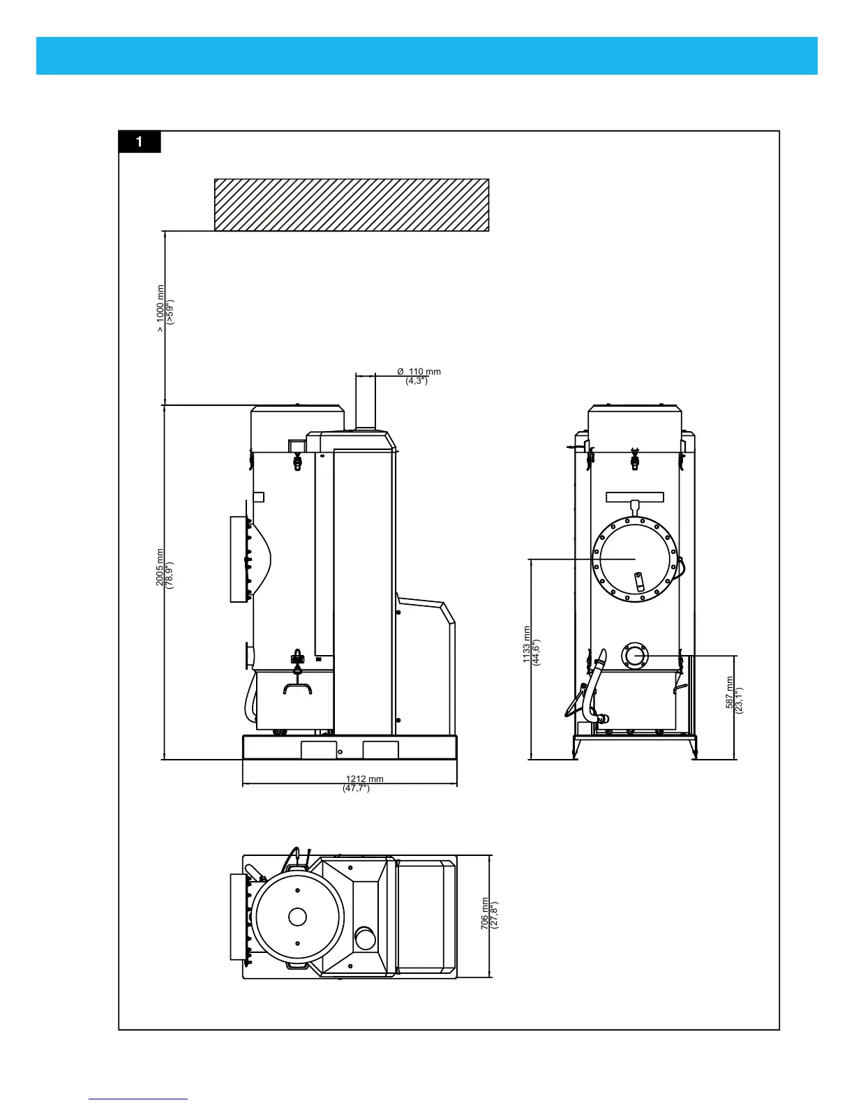
Figures
706 mm
(27,8")
110 mmØ
(4,3")
1133 mm
(44,6")
587 mm
(23,1")
1000 mm>
(>59")
2005 mm
(78,9")
1212 mm
(47,7")
1

Table of Contents

Related product manuals