EasyManua.ls Logo

OM POWER OM2501A - Block Diagram of the OM2501 A Power Amplifier

OM POWER OM2501A
56 pages
Print Icon
To Next Page IconTo Next Page
To Next Page IconTo Next Page
To Previous Page IconTo Previous Page
To Previous Page IconTo Previous Page
Loading...
53
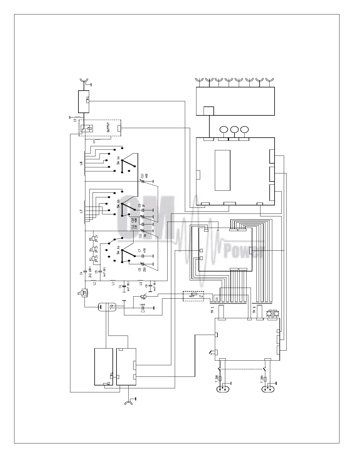
7.9. Block Diagram of the OM25001A (OM3501A) Power Amplifier
J1
J11
Rezerva
Supply
PWR
Output
Box IO
HV supplySW ONInput
Temp
J11
J2
HV supplySW ON
K2
Bias
Supply
J2
J8
J7
J6
M3
M2
M1
J9
J8
J7
J6
J1
J3
J4
J2
J5
I/O BOX
ANT+BPF
CONTROL
PC
LAN
CI-V
TCVR
3
3
3
3
3
3
J5
CONTROL BOARD
DISPLAY
J4J3J2
J14
J10
J9
KEY IN
KEY OUT
LOADTUNE
J12
Ext.bl.
K2
K3Kl 8
Kl 7
K1
Kl 3
Kl 4
Kl 2
Kl 1
K1
J5
J8
TR2
TR1
AC24V
AC2
AC1
J9
J6 J1
Cover SW
OM 2501A Block diagram
Fuse
Blower
SW ON BOARD
HV SUPPLY
OUTPUT
AC 2
AC 1
INPUT
PWR METER
SCREEN BOARD
INPUT BOARD
2
1
J
1R
R2
2
3
7
5
4
3
2
X1
Fu728b
2 1
12
1
2
21
21
2
1
1
4
5
3
1
2
1
2
212121
2
1
2
1
2
1
2
1
2
1
2
1
2
1
21
21
21
21
1
2
1
2
1
2
1

Related product manuals