EasyManua.ls Logo

Omron CP1E-ED - Specifications; Flow of Operation

Omron CP1E-ED
262 pages
Print Icon
To Next Page IconTo Next Page
To Next Page IconTo Next Page
To Previous Page IconTo Previous Page
To Previous Page IconTo Previous Page
Loading...
8-37
8 Using Expansion Units and Expansion I/O Units
CP1E CPU Unit Hardware User’s Manual(W479)
8-4 Temperature Sensor Units
8
8-4-3 Specifications
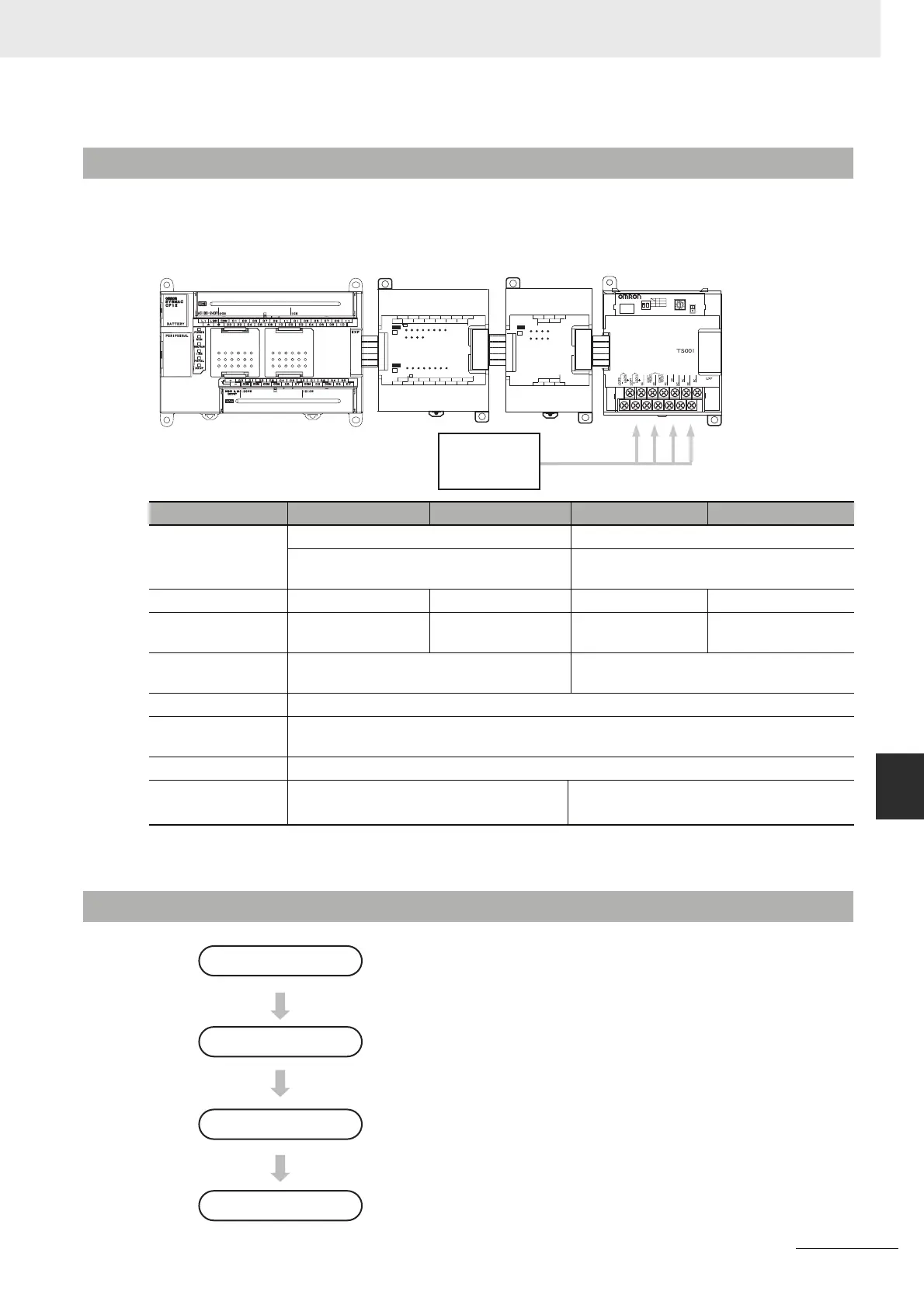
A CP1W-TS Temperature Sensor Unit can be connected to a CP1E CPU Unit.
* Accuracy for a K-type sensor at -100°C or less is ±4°C ±1 digit max.
8-4-3 Specifications
Model CP1W-TS001 CP1W-TS002 CP1W-TS101 CP1W-TS102
Temperature sen-
sors
Thermocouples Platinum resistance thermometer
Switchable between K and J, but same type
must be used for all inputs.
Switchable between Pt100 and JPt100, but
same type must be used for all inputs.
Number of inputs 2 4 2 4
Allocated input
words
2 4 2 4
Accuracy (The larger of ±0.5% of converted value or
±2°C) ±1 digit max. *
(The larger of ±0.5% of converted value or
±1°C) ±1 digit max.
Conversion time 250 ms for 2 or 4 input points
Converted tempera-
ture data
16-bit binary data (4-digit hexadecimal)
Isolation Photocouplers between all temperature input signals
Current consump-
tion
5 VDC: 40 mA max.,
24 VDC: 59 mA max.
5 VDC: 54 mA max.,
24 VDC: 73 mA max.
8-4-4 Flow of Operation
1
Connect the Temperature Sensor Unit.
2
Set the temperature unit, 2-decimal-place Mode if required, and
set the temperature input range.
3
Connect temperature sensors.
4
Read temperature data stored in the input word.
IN
00
CH
CH
02 04 06 08 10
OUT
01COM 0305070911
COM COM COM 03COM06
00 01 02 04 05 07
00 01 02 03 04 05 06
07
08 09 10 11
20EDR1
CH
00 01 02 03 04 05 06 07
NC
NC
NC
CH
EXP
IN
00 02
01COM 0
3
COM 0507
04
06
CH
00 01 02 03
08 09 10
11
8ED
EXP
CP1W-20EDR1
Expansion I/O Unit
CP1W-8ED
Expansion I/O Unit
CP1W-TS 
Temperature Sensor Unit
Thermocouples or
platinum resistance
thermometers
Temperature inputs
CP1E CPU Unit
Connect the Unit.
Set the temperature ranges.
Connect the temperature
sensors.
Program operation in the
ladder program.

Table of Contents

Related product manuals