EasyManua.ls Logo

Omron CP1E-ED - Page 219

Omron CP1E-ED
262 pages
Print Icon
To Next Page IconTo Next Page
To Next Page IconTo Next Page
To Previous Page IconTo Previous Page
To Previous Page IconTo Previous Page
Loading...
Appendices
A-8
CP1E CPU Unit Hardware User’s Manual(W479)
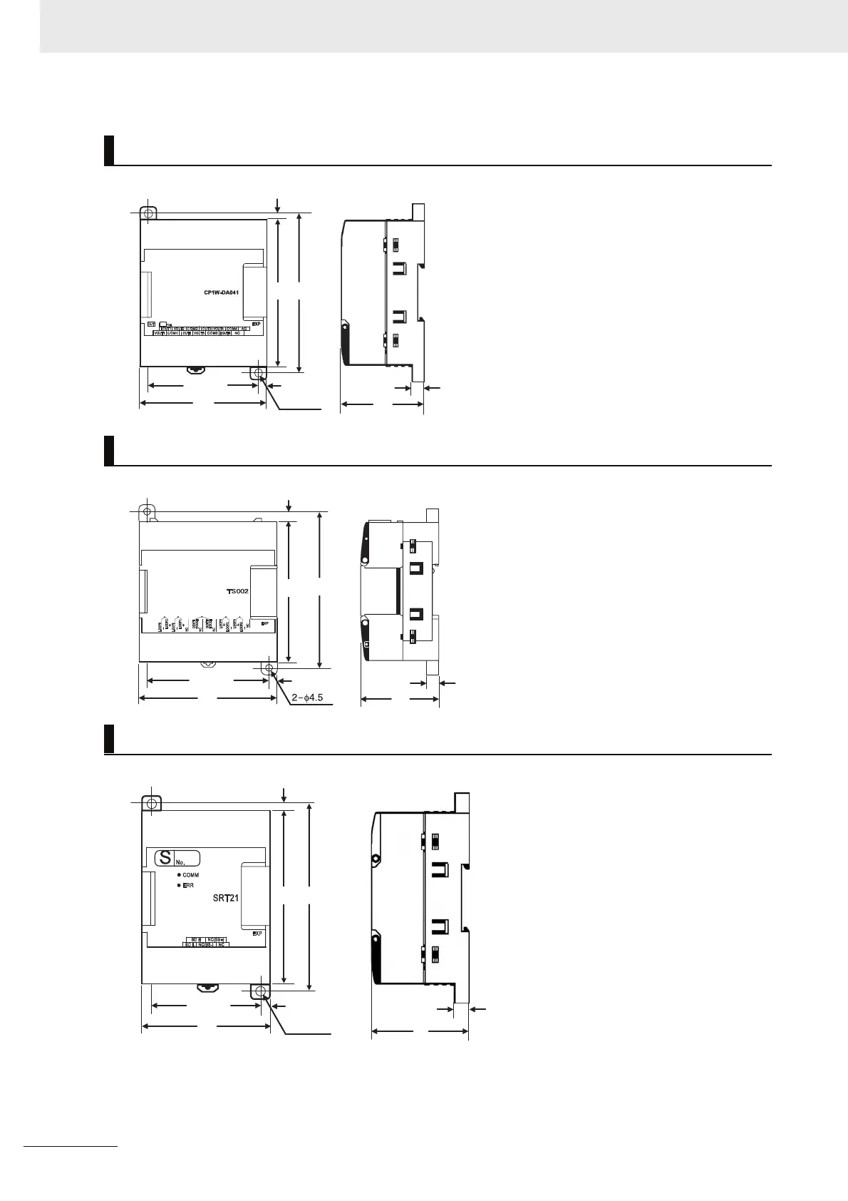
Unit: mm
Unit: mm
Unit: mm
CP1W-DA041 Analog Output Unit
CP1W-TS Temperature Sensor Units
CP1W-SRT21 CompoBus/S I/O Link Unit
5
50
8
2
Ǿ4.5
76r0.2
86
90 100r0.2
5
90
5
5
86
50
8
76±0.2
100±0.2
50
8
2-φ4.5
5
66
56±0.2
90 100±0.2
5

Table of Contents

Related product manuals