EasyManua.ls Logo

Omron E5AN - Page 315

Omron E5AN
355 pages
Print Icon
To Next Page IconTo Next Page
To Next Page IconTo Next Page
To Previous Page IconTo Previous Page
To Previous Page IconTo Previous Page
Loading...
279
Appendix
Current Transformer (CT)
Specifications
Note The maximum continuous current of the E5@N is 50 A.
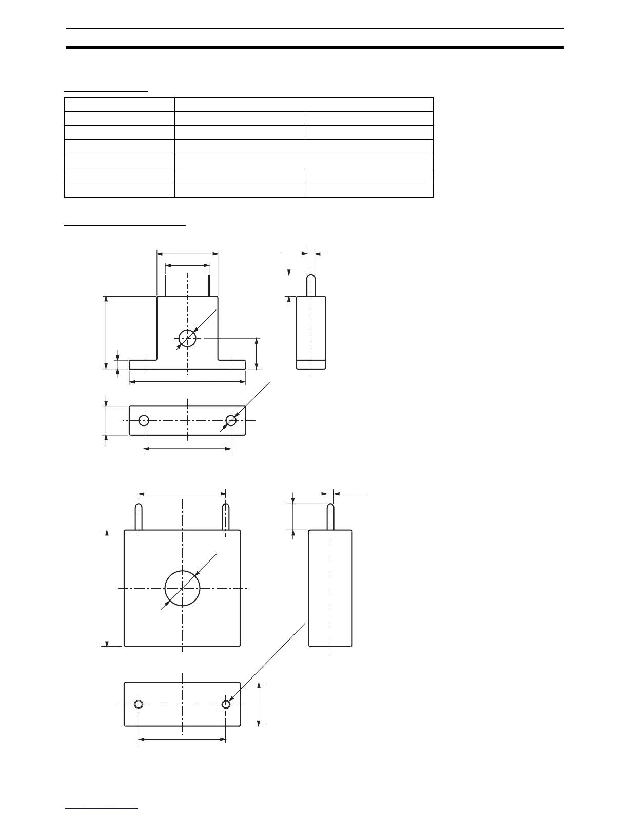
External Dimensions
E54-CT1
E54-CT3
Item Specifications
Model number E54-CT1 E54-CT3
Max. continuous current 50 A 120 A (See note.)
Dielectric strength 1,000 VAC (for 1 min)
Vibration resistance
50 Hz, 98 m/s
2
Weight Approx. 11.5 g Approx. 50 g
Accessories None Armature (2), Plug (2)
21
15
25
3
40
10.5
5.8 dia.
7.5
2.8
10
30
Two, 3.5 dia.
30
40 × 40
12 dia.
9
2.36 dia.
15
30
Two, M3 holes, depth: 4

Table of Contents

Other manuals for Omron E5AN

Related product manuals