EasyManua.ls Logo

Omron SYSMAC C200H - Page 148

Omron SYSMAC C200H
188 pages
Print Icon
To Next Page IconTo Next Page
To Next Page IconTo Next Page
To Previous Page IconTo Previous Page
To Previous Page IconTo Previous Page
Loading...
Appendix BSpecifications
141
TTL I/O Unit C200H-MD501 (Used as 128-point Dynamic Input Unit)
Output Specifications (Connector 1)
Max. Switching Capacity 5 VDC±10% 35 mA (280 mA/common,
560 mA/Unit; output resistance 4.7 k)
Min. Switching Capacity None
Leakage Current 0.1 mA max.
Residual Voltage 0.4 V max.
ON Response Time 0.2 ms max.
OFF Response Time 0.3 ms max.
Fuses 2 (1 fuse/common; fuses are not user-replacable.)
Power for External Supply 20 mA 5 VDC min. (1.2 mA × no. of outputs ON)
Input Specifications (Connector 2)
Rated Input Voltage 5 VDC±10%
Operating Input Voltage 4.5 to 5.5 VDC
Input Impedance 1.1 k
Input Current 3.5 mA (at 5 VDC)
ON Voltage 3.0 VDC min.
OFF Voltage 1.0 VDC max.
General Specifications
No. of Circuits 2 (dynamic, 64 points/circuit)
Internal Current Consumption 180 mA 5 VDC max.
Weight 300 g max.
Dimensions 130×34.5×100.5 (H×W×D, in millimeters)
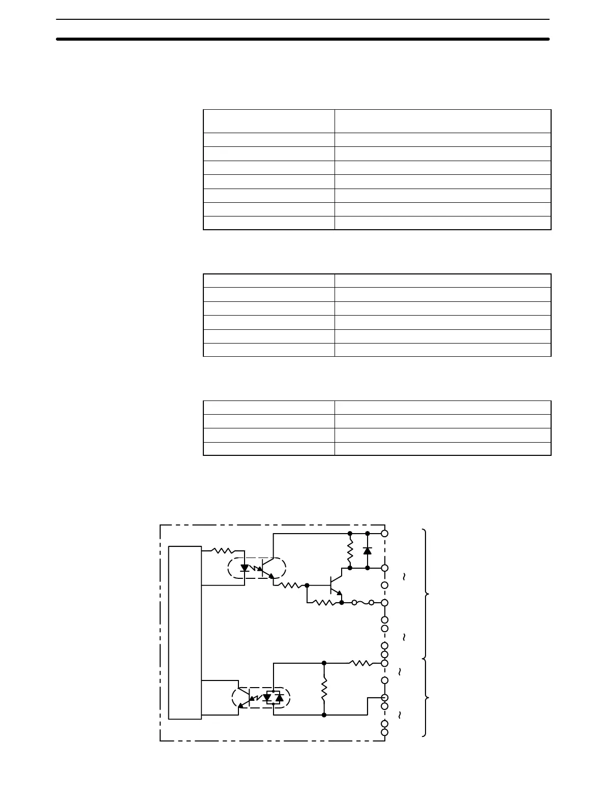
Circuit Configuration
STB00
STB07
COM0
STB08
STB15
COM1
COM2
DATA08
DATA15
COM3
DATA00
DATA07
Internal
circuit
5 VDC
5 VDC
Fuse
4.7 k
1.1 k
2.4 k
CN1
CN2
Artisan Technology Group - Quality Instrumentation ... Guaranteed | (888) 88-SOURCE | www.artisantg.com

Other manuals for Omron SYSMAC C200H

Related product manuals