EasyManua.ls Logo

Omron SYSMAC C200H - Page 153

Omron SYSMAC C200H
188 pages
Print Icon
To Next Page IconTo Next Page
To Next Page IconTo Next Page
To Previous Page IconTo Previous Page
To Previous Page IconTo Previous Page
Loading...
Appendix BSpecifications
146
24 VDC Input/Transistor Output Unit C200H-MD215
(Used as I/O Unit with 16 Inputs and 16 Outputs)
Output Specifications (Connector 1)
Max. Switching Capacity 16 mA 4.5 VDC to 100 mA 26.4 VDC (see page
149), 800 mA/common, 1.6 A/Unit
Min. Switching Capacity None
Leakage Current 0.1 mA max.
Residual Voltage 0.7 V max.
ON Response Time 0.2 ms max.
OFF Response Time 0.6 ms max.
No. of Circuits 2 (8 points/common)
Fuses 2 (1 fuse/common; fuses are not user-replacable.)
Power for External Supply 45 mA 5 to 24 VDC±10% min.
(2.8 mA × number of ON outputs)
Input Specifications (Connector 2)
Rated Input Voltage 24 VDC
Operating Input Voltage 20.4 to 26.4 VDC
Input Impedance 5.6 k
Input Current 4.1 mA (at 24 VDC)
ON Voltage 14.4.0 VDC min.
OFF Voltage 5.0 VDC max.
ON Response Time 2.5 ms/15 ms max. (switchable)
OFF Response Time 2.5 ms/15 ms max. (switchable)
No. of Circuits 2 (8 points/common)
High-speed Inputs 8 points (connector 2 terminals 8 to 15, when set)
Pulse width: 1 ms/4 ms min. (switchable)
General Specifications
Internal Current Consumption 180 mA 5 VDC max.
Weight 300 g max.
Dimensions 130×34.5×100.5 (H×W×D, in millimeters)
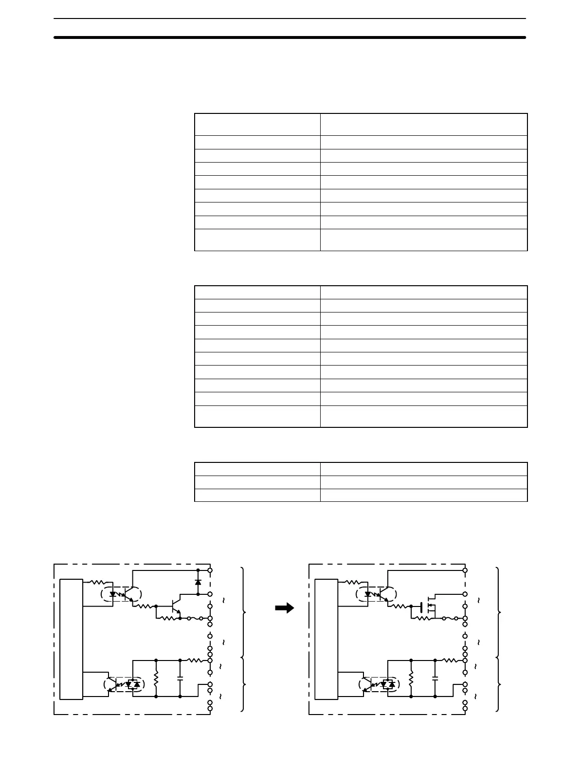
Circuit Configuration
Units manufactured on or before November 29th, 1999
(manufacturing numbers 29Y9 or earlier*)
Units manufactured on or after November 30th, 1999
(manufacturing numbers 30Y9 or later*)
OUT00
OUT07
COM0
OUT08
OUT15
COM1
COM2
IN08
IN15
COM3
IN00
IN07
Internal
Circuit
Fuse
5.6 kW
CN1
5 to
24 VDC
5 to
24 VDC
CN2
1,000 pF
620 W
OUT00
OUT07
COM0
OUT08
OUT15
COM1
COM2
IN08
IN15
COM3
IN00
IN07
Internal
Circuit
Fuse
CN1
5 to
24 VDC
5 to
24 VDC
CN2
10 k
8.2 k
10 k
8.2 k
15 k
6.8 k
5.6 kW
1,000 pF
620 W
Artisan Technology Group - Quality Instrumentation ... Guaranteed | (888) 88-SOURCE | www.artisantg.com

Other manuals for Omron SYSMAC C200H

Related product manuals