EasyManua.ls Logo

Omron SYSMAC C200H - Page 173

Omron SYSMAC C200H
188 pages
Print Icon
To Next Page IconTo Next Page
To Next Page IconTo Next Page
To Previous Page IconTo Previous Page
To Previous Page IconTo Previous Page
Loading...
Appendix BSpecifications
166
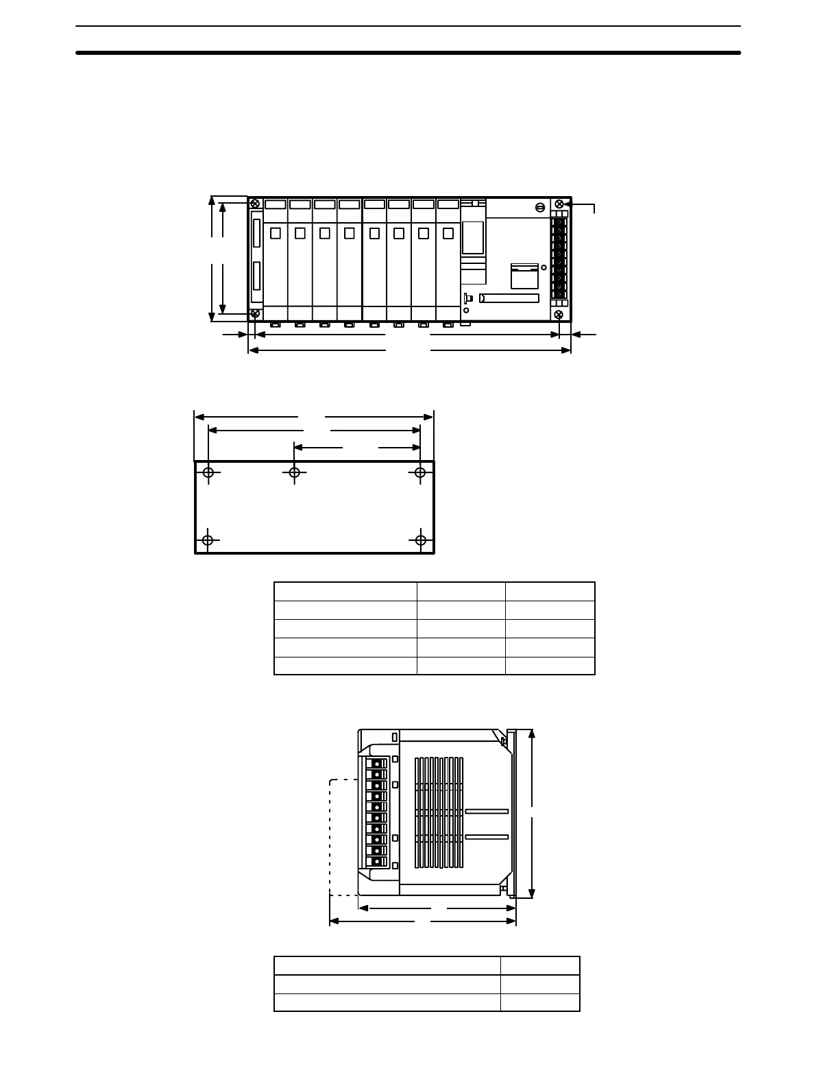
Dimensions
Racks
The dimensions shown below are for both the CPU Rack and Expansion I/O Rack. The C dimension for the Pro-
gramming Console will increase by 30mm when the Programming Console Adapter C200H-BP001 is used, and
will increase by 50 mm when the Programming Console Adapter C200H-BP002 is used.
130
118
A
W
7.5
6.5
M-4
screws
505
491
270.5
C200H-BC101-V2
Model A W
C200H-BC031-V2 246 260
C200H-BC051-V2 316 330
C200H-BC081-V2 421 435
C200H-BC101-V2 491 505
CPU Units
135
D
C
Peripheral
device
CPU Unit D
C200H-CPU21-E/23-E 118
C200H-CPU31-E 143
Artisan Technology Group - Quality Instrumentation ... Guaranteed | (888) 88-SOURCE | www.artisantg.com

Other manuals for Omron SYSMAC C200H

Related product manuals