EasyManua.ls Logo

Omron VARISPEED F7 - Dimensions Extérieures et de Fixation; Variateurs à Châssis Ouverts (IP00)

Omron VARISPEED F7
367 pages
To Next Page IconTo Next Page
To Next Page IconTo Next Page
To Previous Page IconTo Previous Page
To Previous Page IconTo Previous Page
Loading...
1-8
1
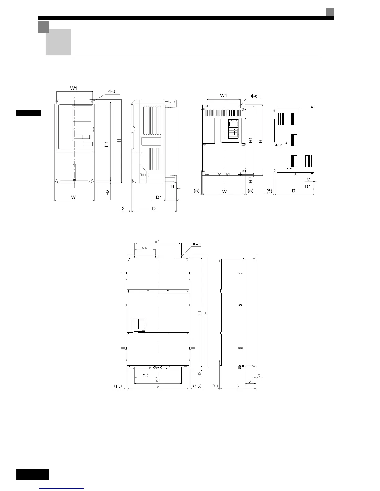
Dimensions extérieures et de fixation
Variateurs à châssis ouverts (IP00)
Les schémas extérieurs des variateurs à châssis ouverts sont présentés ci-dessous.
Fig. 1.8 Vues extérieures de variateurs à châssis ouvert
Variateurs 200 V de 22 à 110 kW
Variateurs 400 V de 22 à 160 kW
Variateurs 200 V/400 V de 0,55 à 18,5 kW
Variateurs 400 V de 185 à 300 kW

Table of Contents

Other manuals for Omron VARISPEED F7

Related product manuals