EasyManua.ls Logo

Onkyo TX-SR303

Onkyo TX-SR303
99 pages
To Next Page IconTo Next Page
To Next Page IconTo Next Page
To Previous Page IconTo Previous Page
To Previous Page IconTo Previous Page
Loading...
TX-SR303/303ETX-SR303/303E
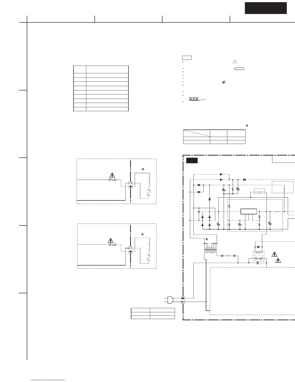
SCHEMATIC DIAGRAMS-6
POWER SUPPLY SECTION
U14
SEC. TERMINAL-1
PC BOARD
THE COMPONENTS IDENTIFIED BY MARK ARE CRITICAL FOR SAFETY
REPLACE ONLY WITH PART NUMBER SPECIFIED.
VOLTAGE (MEASURED WITH VOLTMETER) IS DC VOLTAGE.(NO INPUT SIGNAL).
ALL PNP TRANSISTORS ARE EQUIVALENT TO 2SA1015-GR UNLESS OTHERWISE NOTED.
ALL NPN TRANSISTORS ARE EQUIVALENT TO 2SC1815-GR UNLESS OTHERWISE NOTED.
ALL DIODES ARE EQUIVALENT TO 1SS133 UNLESS OTHERWISE NOTED.
ELECTROLYTIC CAPACITORS ( ) ARE IN uF/WV.
ALL CAPACITORS ARE IN pF/50WV UNLESS OTHERWISE NOTED.
EX) 030- 3pF 330- 33pF 331- 330pF 333- 0.033uF
ALL RESISTORS ARE IN OHMS 1/4WATTS UNLESS OTHERWISE NOTED.
THE THICK LINES ON PC BOARD ARE THE PRINTING SIDE OF THE PARTS.
EX) PRINTING SIDE
CIRCUIT IS SUBJECT TO CHANGE FOR IMPROVEMENT.
!
NOTE
<Note>
NC=No mount of parts.
Q9023
RN1202
Q9021
RN2202
W-TYPE ONLY
Q9022
RN2202
P9502A
TO NAAF-8523
Q930
SI-3010KF
W-TYPE
ACG
I
O
RL901
T902
Refer to left diagrams
for each destination.
1
3
4
F901
F902
D, J: 2.5A125V
F9501
P,W:T2.5AL250V
T6/A6 ONLY
P931A
P931B
C921
223Z
C901
103M
/275VAC
D9023
D9024D9022
D9025
D934
D935
D933
D9013
RL1N4003
D9009,9013
GP104003E
D9009
D9706
D925
D930
D931
D932
D922
D9004
D9003
D9002
D9001
D9501-9503:
RL1N4003
D924
D923
D921
D9705
J962
EXCEPT W TYPE
J955
NC
J919
W-TYPEEXCEPT
J924
J956
J922
W-TYPE
ONLY
J921
EXCEPT
W-TYPE
C9001
334J
MMT
C9708
222J
C9591
104J
R9023
10K
R9022
10K
R9024
3.3K
R934
100K
R931
100K
R923
1K
R922
10K
R932
82K
R933
10K
R930
100K
R9594
2.2
(1/2W)
R9593
0.22
OTHER THAN T6/A6
(1/2W)
R9592
1
(1/2W)
R9591
1 (1/2W)
C9021
100/16
C933
4.7/50
C922
2200/35
2200/16
(W-TYPE)
(OTHER)
C930
100/35
C9016
10/50
C9015
10/50
C9009
220/35
C9014
470/63
C932
100/16
C931
10/50
C9003
1000/35
C9004
470/35
P918
P917
8
9
10
11
12
14
13
P995BP995A
TO NAAF-8523
P995C
T5, A5, H5, T6, A6 ONLY
15
16
17
18
19
Q921
KTC3199-GR
2SC1740S-R,S
2SC2458-GR
P912
P912
P901A
AC-H
AC-G
P901
T901
PP Type
T901
DD, DC Type
T901
THERMAL
FUSE
JL6952B
TO NAAF-8523
JL6951B
TO NAAF-8523
T3, H3, T4, H4 ONLY
JL9501B
JL9501A
R9007
0
(1/2W)
R9002 22
(1/2W)
R9005
330K
R9004
8.2K
R9003
8.2K
D9026
MTZJ12C
DZ-12BSC
D9012
MTZJ27D
E9001
Q9002 KTA1266-GR
OR 2SA1015-GR
+24V
S3GND
-24V
SEC2-1
SEC2-2
-VP
MPUGND
+12VD
+10VS
FLAC2
POWER
POFFV
FLAC1
POFFVP POFFVP
+10VS
+12VD
MPUGND
FLAC1
FLAC2
SEC3-2
S3GND
SEC3-1
SEC2-2
SEC2-1
POWERD POWERD
GND
FLAC1
FLAC2
SEC3-2
SEC3-1
SEC2-2
SEC2-1
T901
DESTINATION
DD
PP
NAPS-8547
NAPS-8546
NAPS-8544
NAETC-8524
U06
SEC. TERMINAL-2
PC BOARD
U13
POWER SUPPLY-2 PC BOARD
U11
POWER SUPPLY-1 PC BOARD
APPLY MODELS & CODE
CODE MODEL
T3
H3
T4
H4
T5
A5
H5
T6
A6
TX-SR303
HT-R330
TX-SR403 / TX-SR8340
HT-R430
TX-SR503/503E / TX-SR8350
TX-SA503
HT-R530
TX-SR603 / TX-SR8360
TX-SA603
T902
CIRCUIT NO.
NPT-1514D
NPT-1514P
NPT-1520JQ
NPT-1519GQ
Refer to following table about the parts displayed by mark " ".
AC IN
AC IN
120V /60Hz
230-240V / 50Hz
DESTINATION
DD
PP
6.3A 125V
T3.15A 250V
A
1
2
3
4
5
BCDEFGH

Related product manuals