EasyManua.ls Logo

Onkyo TX-SR303

Onkyo TX-SR303
99 pages
To Next Page IconTo Next Page
To Next Page IconTo Next Page
To Previous Page IconTo Previous Page
To Previous Page IconTo Previous Page
Loading...
TX-SR303/303ETX-SR303/303E
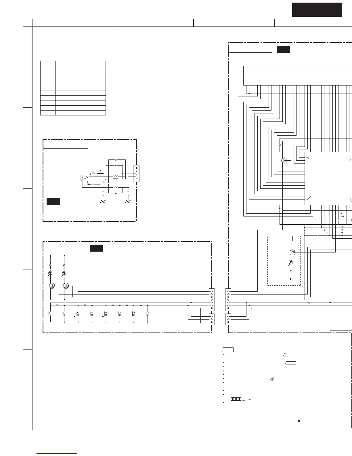
SCHEMATIC DIAGRAMS-7
DISPLAY SECTION
Refer to following table about the parts displayed by mark " ".
THE COMPONENTS IDENTIFIED BY MARK ARE CRITICAL FOR SAFETY
REPLACE ONLY WITH PART NUMBER SPECIFIED.
VOLTAGE (MEASURED WITH VOLTMETER) IS DC VOLTAGE.(NO INPUT SIGNAL).
ALL PNP TRANSISTORS ARE EQUIVALENT TO 2SA1015-GR UNLESS OTHERWISE NOTED.
ALL NPN TRANSISTORS ARE EQUIVALENT TO 2SC1815-GR UNLESS OTHERWISE NOTED.
ALL DIODES ARE EQUIVALENT TO 1SS133 UNLESS OTHERWISE NOTED.
ELECTROLYTIC CAPACITORS ( ) ARE IN uF/WV.
ALL CAPACITORS ARE IN pF/50WV UNLESS OTHERWISE NOTED.
EX) 030- 3pF 330- 33pF 331- 330pF 333- 0.033uF
ALL RESISTORS ARE IN OHMS 1/4WATTS UNLESS OTHERWISE NOTED.
THE THICK LINES ON PC BOARD ARE THE PRINTING SIDE OF THE PARTS.
EX) PRINTING SIDE
CIRCUIT IS SUBJECT TO CHANGE FOR IMPROVEMENT.
!
NOTE
<Note>
NC=No mount of parts.
LEDZONE2
LEDPURE
KEYINT0
KEY0_2
+BLED
LEDSTBY
FLDRST
FLDCS
FLDCLK
FLDSDO
MICMUT
LEDVOL
LEDPURE
GNDLED
+BLED
LEDZONE2
KEYINT0
GNDTACT
KEY0_2
MICDET
MICOUT
GNDV4V
GNDV4
V4V
V4_L
V4_R
+5VDIS
+7V
V4Y
V4C
OPTF
FLDRST
FLDCS
FLDCLK
FLDSDO
REMIN
GNDMIC
-7V
LEDPURE
LEDSTBY
LEDZONE2
FAC1
FAC2
+5.6S
KEYINT3
KEYINT2
KEYINT1
KEYINT0
KEY3
KEY2
KEY1
KEY0
GNDCPU
VOLA
VOLB
-VP
T3, H3, T4, H4
T5, H5, A5
29P
T6, A6 40P
STANDBY
NADIS-8513
CD
TUNER
TAPE
VIDEO 4
VIDEO 3
VIDEO 2
VIDEO 1
DVD
CD
TUNER
TAPE
DVD
MULTI CH
MULTI CH
VIDEO 3
VIDEO 2
VIDEO 1
MEMORY
DIGITAL
INPUT
DISPLAY
LISTENING
MODE >
LISTEING
MODE <
STEREO
TONE+
TONE-
TONE
TUNNIG UP
TUNING
DOWN
PRESET
UP
PRESET
DOWN
ENTER
SETUP
RETURN
TUNING
MODE
DIMMER
P701B
P702B
P703B
NAETC-8516
ZONE2
PURE AUDIO
NASW-8515
SP B /
ZONE2 LEVEL >
SP B
SP A /
ZONE2 LEVEL <
SP A
ZONE2 OFF
ZONE2
STANDBY/ON
PURE AUDIO
VOLUME
TO NAAF-8523
TO NADG-8514
C816
473Z
R804
220
R805
220
C807
101J
C808
101J
C809101J
C815
473Z
C813104Z
C814
104Z
C804
104Z
C803
101J
C805
104Z
C806
101J
Q802
M66005
49
SEG2
50
SEG1
51
SEG0
52
VCC2
53
DIG15/SEG39
54
DIG14/SEG38
55
DIG13/SEG37
56
DIG12/SEG36
57
DIG11
58
DIG10
59
DIG9
60
DIG8
61
DIG7
62
DIG6
63
DIG5
64
DIG4
1
DIG03
2
DIG02
3
DIG01
4
DIG00
5
_RESET
6
_CS
7
SCK
8
SDATA
9
P1
10
P0
11
VCC1
12
XOUT
13
XIN
14
VSS
15
SEG35
16
SEG34
17
SEG33
18
SEG32
19
SEG31
20
SEG30
21
SEG29
22
SEG28
23
SEG27
24
VP
25
SEG26
26
SEG25
27
SEG24
28
SEG23
29
SEG22
30
SEG21
31
SEG20
32
SEG19
33
SEG18
34
SEG17
35
SEG16
36
SEG15
37
SEG14
38
SEG13
39
SEG12
40
SEG11
41
SEG10
42
SEG9
43
SEG8
44
SEG7
45
SEG6
46
SEG5
47
SEG4
48
SEG3
C801
474J
R801
27K
C818
223Z
R807
220
R821
2.2K
D811
UDZS7.5B
D821
R808
100K
JL832A
1
2
3
JL831A
7
6
5
4
3
2
1
S818
S817
S816
S815
S814
S813
S811
S812
R831
330
C821 104Z
C822
104Z
L812
022M
C812 104Z
L811
022M
C811 473Z
R811
10K
R813
10K
R812
10K
R814
10K
R828
1K
R841
330
R842
470
R843
560
R844
820
R845
1.2K
R846
2.2K
R847
3.9K
S848
S847
S846
S843
S842
S841
S845
S840
S801
R851
330
R852
470
R853
560
R854
820
R855
1.2K
R856
2.2K
R857
3.9K
R858
12K
S828
S827
S826
S825
S824
S823
S821
S822
S829
R861
330
R862
470
R863
560
R864
820
R865
1.2K
R866
2.2K
R867
3.9K
R868
12K
S839
S838
S837
S836
S835
S834
S833
S831
S832
C825
102K
R827
100
C824
NC
Q801
16BT127GNK
59
F12
58
F11
55
1G
54
2G
53
3G
52
4G
51
5G
50
6G
49
7G
48
8G
47
9G
46
10G
45
11G
44
12G
43
13G
42
14G
41
15G
40
16G
39
P1
38
P2
37
P3
36
P4
35
P5
34
P6
33
P7
32
P8
31
P9
30
P10
29
P11
28
P12
27
P13
26
P14
25
P15
24
P16
23
P17
22
P18
21
P19
20
P20
19
P21
18
P22
17
P23
16
P24
15
P25
14
P26
13
P27
12
P28
11
P29
10
P30
9
P31
8
P32
7
P33
6
P34
5
P35
2
F22
1
F21
S851
R803
3.3K
R802
3.3K
C892
104Z
E891
E892
C894
102K
C893
102K
L893
022M
P891
1
8
7
3
2
4
5
C891
104Z
L891
022M
L892
022M
R893
R892
R891
R823
56
R824
56
JL832B
3
2
1
JL831B
1
2
3
4
5
6
7
R822
NC
R832
470
S803
S802
R825
NC
R826
NC
S808
S804
S809
R834
820
R835
1.2K
R836
2.2K
S807
S805
S806
R833
560
D824
1
D822
Q824
NC
Q822
NC
JL891A
1
2
3
4
5
Q803
2SC2712
Q823
RN2402
Q821
NC
C820
104Z
C819 104Z
C802
100/6.3
+
C817
33/50
+
U821
2
3
1
C823
100/6.3
+
D823
JL833A
3
2
1
C896
124J
R806
220
1
2
3
4
5
6
7
8
9
10
11
12
13
14
15
16
17
18
19
20
21
22
23
24
25
26
27
28
29
30
31
32
33
34
35
36
37
38
39
40
R810
100
U01
DISPLAY PC BOARD
U03 SWITCH PC BOARD
U04
HEADPHONE JACK
PC BOARD
PHONES
FL TUBE
MASTER
VOLUME
23P
T6, A6 ONLY
APPLY MODELS & CODE
CODE MODEL
T3
H3
T4
H4
T5
A5
H5
T6
A6
TX-SR303
HT-R330
TX-SR403 / TX-SR8340
HT-R430
TX-SR503/503E / TX-SR8350
TX-SA503
HT-R530
TX-SR603 / TX-SR8360
TX-SA603
P703B
NC
NC
NC
NC
NC
NC
NC
NC
NC
NC
NC
NC
NC
NC
NC
NC
NC
NC
NC
NC
NC
NC
NC
A
1
2
3
4
5
BCDEFGH

Related product manuals