EasyManua.ls Logo

ontime AVC118 - System Connection

ontime AVC118
27 pages
Print Icon
To Next Page IconTo Next Page
To Next Page IconTo Next Page
To Previous Page IconTo Previous Page
To Previous Page IconTo Previous Page
Loading...
SHENZHEN ONTIME TECHNOLOGY CO.LTD
5
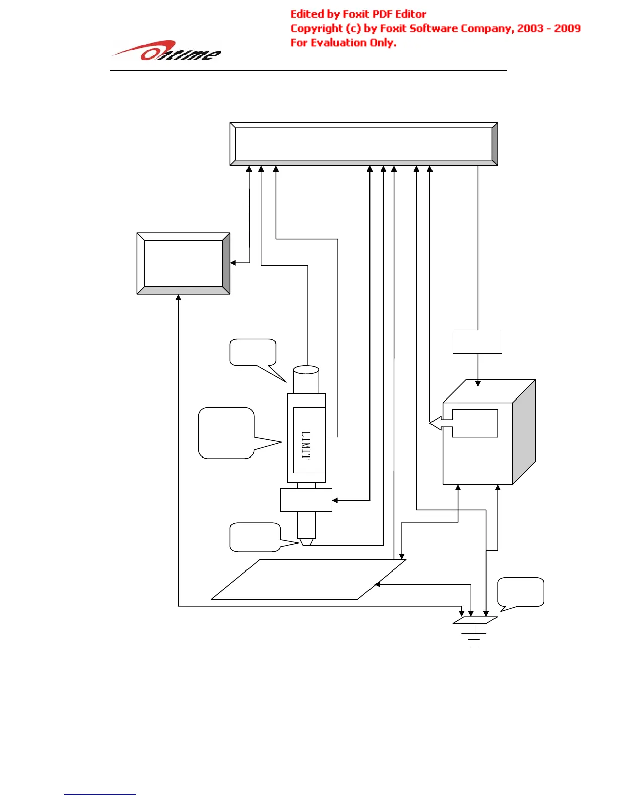
System connection
AVC118 controller system connection
AVC118 Controller
CNC
SYSTEM
WORK PIECES
PLASMA
ARC VOLT
MOTOR
Torch
Lifter
SHIELD
L
I
M
I
T
PRO SW
GROUND
START