EasyManua.ls Logo

Outback Power Systems MX60 - Page 12

Outback Power Systems MX60
92 pages
Print Icon
To Next Page IconTo Next Page
To Next Page IconTo Next Page
To Previous Page IconTo Previous Page
To Previous Page IconTo Previous Page
Loading...
12
OutBack Power Systems Inc.
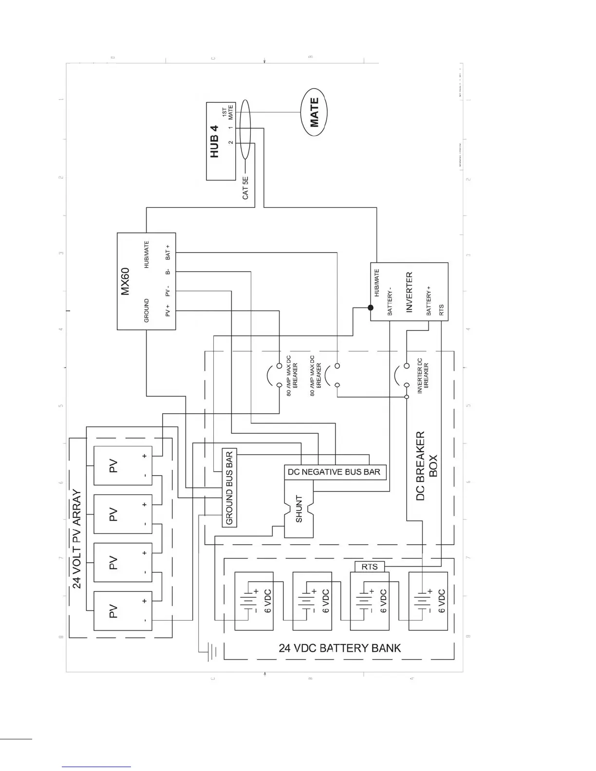
Figure 2 MX60 WIRING DIAGRAM WITHOUT A GFP/2, the ground conductors tie into the negative
terminal bus bar.

Table of Contents

Related product manuals