EasyManua.ls Logo

Panasonic CU-4E24RBU - Cu-4 E24 Rbu

Panasonic CU-4E24RBU
196 pages
Print Icon
To Next Page IconTo Next Page
To Next Page IconTo Next Page
To Previous Page IconTo Previous Page
To Previous Page IconTo Previous Page
Loading...
20
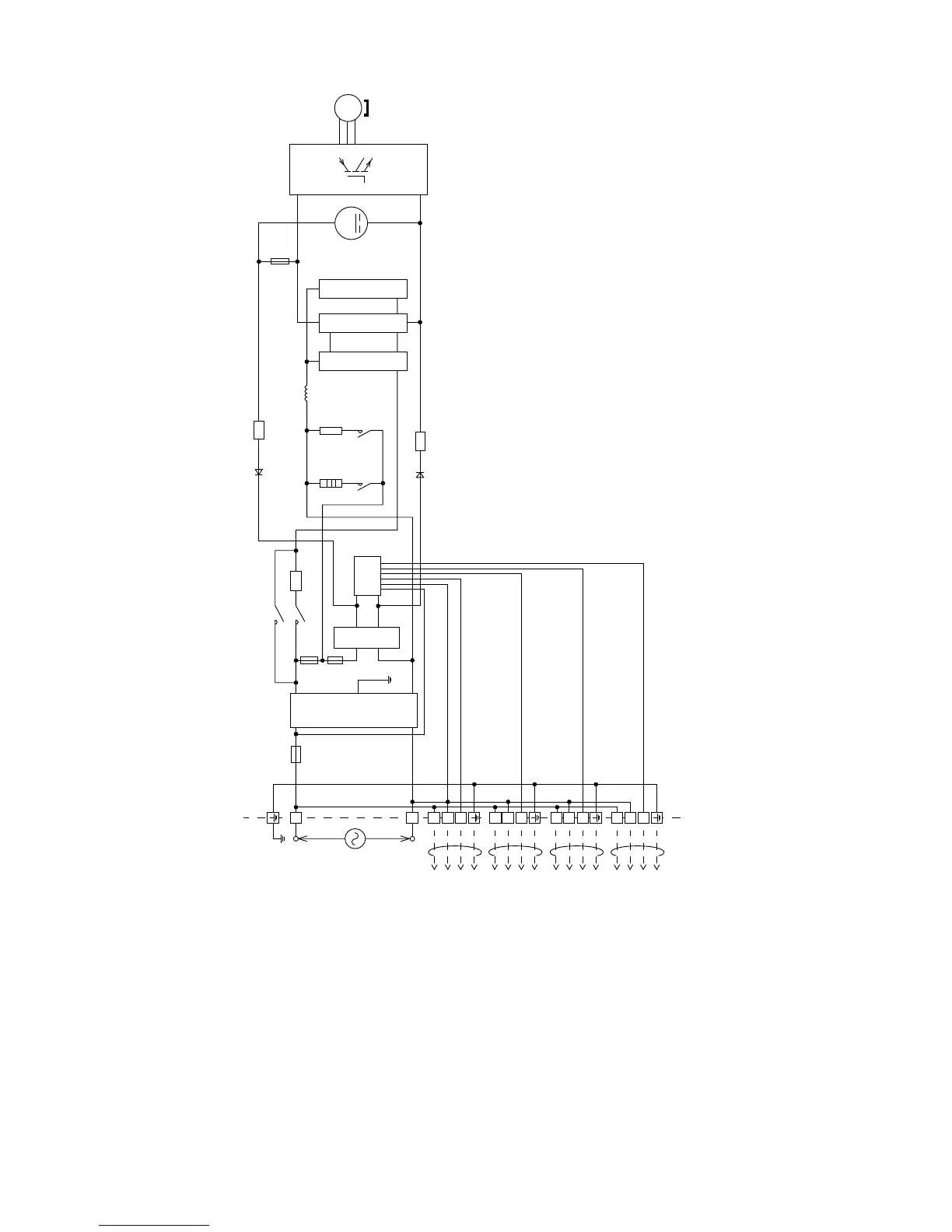
5.2 CU-4E24RBU
L1
L2
1
2
3
1
2
3
MS
3~
M
FUSE 1
NTC
4-WAY
VALVE
RY-HOT
HEATER
RY-HT
FUSE 2
FUSE 401
SINGLE PHASE
POWER SUPPLY
AC 208/230V
60Hz
TO INDOOR UNIT A
TO INDOOR UNIT B
RY-AC
RY-PWR
(OUTDOOR UNIT)
PTC
PFC CIRCUIT
CAPACITOR CIRCUIT
RECTIFICATION
CIRCUIT
RECTIFICATION
CIRCUIT
REACTOR
NTC
SC
NTC
NOISE FILTER
CIRCUIT
1
2
3
TO INDOOR UNIT C
1
2
3
TO INDOOR UNIT D

Table of Contents

Related product manuals