EasyManua.ls Logo

Panasonic DMR-EZ47VP

Panasonic DMR-EZ47VP
122 pages
To Next Page IconTo Next Page
To Next Page IconTo Next Page
To Previous Page IconTo Previous Page
To Previous Page IconTo Previous Page
Loading...
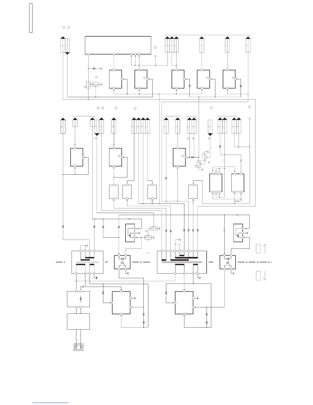
11 Block Diagram
11.1. Power Supply Block Diagram
ON:
5
V OUT 18
IC1400
(REG.)
V IN
32
90
19
7
7
DP7501-
TO MAIN P.C.B.
1
DP7501-
TO MAIN P.C.B.
71
IC7501-
FROM MAIN P.C.B.
F+
F-
-VPP
T1130
SW TRANSFORMER
T1110
SW TRANSFORMER
P31904 P6002
2
DIGITAL P.C.B.
TO
DIGITAL P.C.B.
TO
P37101 P56001
47,49,51
P31904 P6002
1
MAIN P.C.B.
TO
P31903 P6003
14,15
P31902 P3902
2
MAIN P.C.B.
TO
DIGITAL P.C.B.
TO
P31903 P6003
19
P37101 P56001
72
P37101 P56001
33
P37101 P56001
37
P37101 P56001
25
P31903 P6003
6
IC7501-
TO MAIN P.C.B.
23
8
IC7501-
TO MAIN P.C.B.
TO
DIGITAL P.C.B.
TO
MAIN P.C.B.
IC37001-
P31904 P6002
4
X SW +5.8V
D +3.3V
P OFF DL
JC P ON
TO
MAIN P.C.B.
TO
FRONT(R) P.C.B.
P31903 P6003
10,11
X SW +5.8V
TO
DIGITAL P.C.B.
P37101 P56001
29
X SW +5.8V
X SW +3.2V
P31906 PP27501
9
2
IP1400
1
2
IP1410
1
2
IP39001
1
2
IP1001
1
2
A
IC1350
(ERROR VOLTAGE DET.)
1
K R
3
(ERROR VOLTAGE DET.)
VCC
4
D1130
GND
3
D1132D1133
IC1130
F/B
DRAIN 5
2
Z/C
(SWITCHING IC)
1
3
RK
1
1
2
4
IC1370
3
(FEED BACK)
Q1130
A
2
D1113 D1112
D1110
B1
20
19
18
17
16
15
14
13
129
8
B2
6
P2
4
P1
B2
B1
P2
P1
11
9
10
8
5
4
3
1
DMR-EZ47VP/EZ475VP
Power Supply Block Diagram
1
2
4
3
(FEED BACK)
Q1110
( :ON)
QR1350
Q1350
POWER ON/OFF
CONTROL
H
VCC
4
2
1
4
3
GND
3
HOT COLD
IC1110
F/B
DRAIN 5
2
Z/C
RECTIFIER
D1101,C1107L1102
VA1101,L1101
F1101
ABSORBER
SURGE
AND
SUPPRESSOR
SURGE
(SWITCHING IC)
1
P1101
AC SOCKET
H
H
L
DI P ON
L
H
H
H
L
CONT
1
V OUT 42
IC1200
(REG. DR+12V)
V IN
DVD DRIVE
TO
QR7801
( : ON)
H
Q7802
(JC P : ON)
MECHA +12.5V
DR +12V
JC +5V
D +5V
D +5V
AU +5V
P31903
TO MAIN P.C.B.
IC-2501-
FROM MAIN P.C.B.
IC-7501-
P6003
17
P31903 P6003
3
UNREG +38V
JC P ON
ANA +3.3V
X SW +4V
P1201
1,2
DR +5V
DR P ON
P1201
4
ON:
V OUTV IN
H
ON:
H
CONT
3
V OUT 51
IC7801
TU7801
U/V TUNER
(BOOSTER +5V)
(ANALOG/DIGITAL)
V IN
11
+30V
1
BOOSTER +5V
17
VIF +5V
9
TUNER +5V
IC7301-
4
REC +5V
ON:
3
V OUT 51
IC31001
(REG. JC +5V)
V IN
H
ON:
CONT
3
V OUT 51
IC31004
(REG. D +5V)
V IN
3
V OUT 54
IC45001
(REG. AU +5V)
V IN
5
V OUT 18
IC31002
(REG. ANA +3.3V)
V IN
4
21
IC1430
(REG. D +3.3V)
34 S
D
D
G
D
D
25
16
Q1001
(REG. D +2.3V)
71 VIN
CS
EXT
FB
58
IC1001
(DC-DC CONVERTER)
QR31002
(DI POWER :ON)
H
QR31001
( :ON)
P37101 P56001
41,43
T +1.5V
P37101 P56001
59,61,63
D +2.3V
P37101 P56001
67
X SW +12V
P37101 P56001
55
X SW +12V
P31903 P6003
18
P37101 P56001
21
P31904 P6002
18
P37101 P56001
19
DMR-EZ47VP / DMR-EZ475VP
53

Table of Contents

Related product manuals